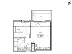
OIKO GESTION vous propose un superbe T2 de 46,06 m² au 1 étage avec 8 m² de balcon. L'appartement est composé d'un séjour avec une cuisine ouverte aménagée de 23 m², d'une chambre de 12 m², d'une salle de bain et des WC séparés.
Un box simple et une place extérieur complètent ce bien.
Chauffage et eau chaude individuels.
À 7,5 km de Genève « La Ferme de l'Hôpital » est une résidence neuve, sécurisée avec espaces verts partagés par 7 bâtiments.
Chaque bâtiment est composé d'une vingtaine d'appartements répartis sur 2 ou 3 étages maximum (avec ascenseur), d'un parking en sous-sol et d'un local à vélos.
N'hésitez pas à nous contacter !
Les informations sur les risques auxquels ce bien est exposé sont disponibles sur le site Géorisques : www. georisques. gouv.fr
46 m²
2
1
1
1
1
1
Aménagée
Consommations énergétiques
Logement économe
79
Logement énergivore (kWhEP/m2/an)
Émissions de gaz à effet de serre
Faible émission de GES
15
Forte émission de GES(kgeqCO2/m2/an)
Contact Coralie ROUX
Contacter gratuitement à l'aide du formulaire ci-dessous.