À LOUER ? APPARTEMENT T2 NEUF AU BLANC-MESNIL ? 104 Rue Aristide Briand, 93150 Le Blanc-Mesnil
PHOTOS NON CONTRACTUELLES
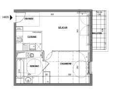
Découvrez cet appartement T2 neuf de 41 m², situé dans une résidence moderne et sécurisée. Ce bien lumineux et agréable, situé au 4ème étage, avec balcon de 5m².
Caractéristiques du bien :
Pièce principale spacieuse avec cuisine ouverte, offrant un espace de vie convivial et lumineux.
Une place de parking au sous-sol complète ce bien.
Chauffage et eau chaude collectifs (chauffage urbain)
Un emplacement privilégié :
Transports en commun :
? À 10 minutes à pied de la gare Le Blanc-Mesnil (RER B), permettant de rejoindre Paris Gare du Nord en 15 minutes
? Arrêts de bus à proximité desservant les communes voisines et les grandes infrastructures de la région
? Accès facilité à la future ligne 16 du Grand Paris Express
Commodités et commerces :
? Supermarchés, boulangeries, pharmacies et commerces de proximité accessibles en quelques minutes
? Centres commerciaux et marché du Blanc-Mesnil à proximité
Écoles et services :
? Crèches, écoles maternelles et élémentaires, collèges et lycées à quelques pas
Santé et services médicaux :
? Centre hospitalier Robert Ballanger et nombreux cabinets médicaux dans le quartier
Contactez-nous dès maintenant pour organiser une visite !
Les informations sur les risques auxquels ce bien est exposé sont disponibles sur le site www.georisques.gouv.fr
41 m²
2
1
1
4
Consommations énergétiques
Logement économe
81
Logement énergivore (kWhEP/m2/an)
Émissions de gaz à effet de serre
Faible émission de GES
7
Forte émission de GES(kgeqCO2/m2/an)
Contact OIKO GESTION
Contacter gratuitement à l'aide du formulaire ci-dessous.