Beau T2 + Cabine MEUBLÉ avec Terrasse au pied des pistes
Les Deux Alpes 38860
0
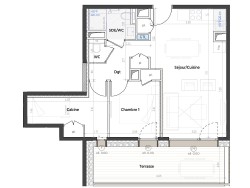
Situé au centre même des 2 Alpes, La résidence bénéficie d'une situation idéale pour profiter d'une station qui vit et se vit toute l'année. Commerces de bouche et bonnes tables, adresses shopping et bien-être, lieux de festivité comme de détente. Située face aux remontées mécaniques, particulièrement la célèbre télécabine du Jandri Express, qui permet d'accéder au glacier puis au funiculaire pour rejoindre le belvédère des Écrins à 3 400 m d'altitude. Je vous propose ce très beau T2 + Cabine (6 couchages) de 56,74m² composé d'un séjour avec cuisine équipée ouvert sur une terrasse de 14,71m², une chambre, une salle d'eau, une Cabine et un wc séparé . une place de parking est vendu avec l'appartement Découvrez une nouvelle génération de résidence secondaire locative : Liberté d'occupation propriétaire - Revenus locatifs saisonniers - Sérénité de gestion Bâtiment basse consommation Contactez Grégory pour plus d'informations au O6.69.26.64.26 Visuel non contractuel Copropriété de 68 lots. Charges annuelles : 1200 euros.