Beau T3 en duplex en plein centre-ville de Chartres
Chartres 28000
0
Honoraires à la charge du vendeur.
Appartement T3 en Duplex - CHARTRES-PLACE CYGNE !
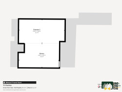
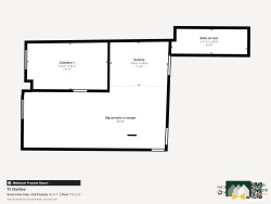
Bienvenue dans votre futur chez-vous ! Nous sommes ravis de vous présenter ce magnifique appartement T3 en duplex, situé aux 1er et 2? étages d'un immeuble de caractère construit en 1900 et entièrement rénové en 2021. Ce bien allie parfaitement le charme de l'ancien et le confort moderne.
DÉCOUVREZ UN APPARTEMENT COMPOSÉ COMME SUIT :
-Un séjour lumineux de 22 m², -Une cuisine américaine aménagée et équipée, -Une chambre spacieuse, -Une salle de bains avec WC.
À L'ÉTAGE :
-Une grande chambre, avec possibilité d'aménager un espace bureau.
CÔTÉ CONFORT
-Proximité des commodités, -Espaces bien proportionnés, -Appartement en bon état général, -Immeuble rénové récemment.
L'EMPLACEMENT
Situé dans un environnement agréable, l'appartement bénéficie de la proximité des écoles, des commerces et des transports en commun, facilitant le quotidien tout en offrant un cadre de vie pratique et confortable.
Contactez-nous dès maintenant pour organiser une visite et découvrir tout le potentiel de ce magnifique appartement !
Honoraires à la charge du vendeur. Dans une copropriété de 6 lots. Aucune procédure n'est en cours. Classe énergie D, Classe climat B Montant moyen estimé des dépenses annuelles d'énergie pour un usage standard, établi à partir des prix de l'énergie de l'année 2021 : entre 1445.00 et 1956.00 . Les informations sur les risques auxquels ce bien est exposé sont disponibles sur le site Géorisques : georisques.gouv.fr.
65.61 m²
2 437 €
22 m²
3
2
1
1
1 sur 3
88.34 € / mois
1900
Est
Ouest
Oui (6 lots)
Consommations énergétiques
Logement économe
238
Logement énergivore (kWhEP/m2/an)
Émissions de gaz à effet de serre
Faible émission de GES
9
Forte émission de GES(kgeqCO2/m2/an)
Contact Haris TUFEKOVIC
Contacter gratuitement à l'aide du formulaire ci-dessous.