L'agence 'MON BIEN A LA MER', spécialiste de l'immobilier neuf bord de mer, vous présente :
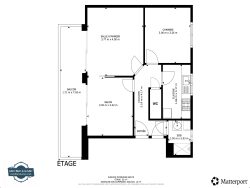
Superbe situation pour ce petit T3 rénové en 2020, à 100m de la mer : Situé au 2è étage d'une petite copropriété, cet appartement exposé sud avec une très belle vue mer vous offre : - Séjour et chambre/salon donnant sur une terrasse de +10m2 - Chambre sur cour - Coin cuisine séparé - salle d'eau douche, wc séparé, entrée avec placard - chauffage individuel électrique, charges de copropriété environ 100 euros mensuels
Tous commerces au pied de l'immeuble, idéal pied à terre.
Nous Consulter.
Honoraires à la charge du vendeur. Classe énergie F, Classe climat C Logement à consommation énergétique excessive. Montant estimé des dépenses annuelles d'énergie pour un usage standard : entre 1417.00 et 1918.00 sur les années 2021, 2022 et 2023 (abonnements compris). Les informations sur les risques auxquels ce bien est exposé sont disponibles sur le site Géorisques : georisques.gouv.fr.
Votre conseiller MON BIEN A LA MER : Gérant - .fr MON BIEN A LA MER Carte T CPI 2201 2018 000 025 040 RCP ACM IARD B1 7025278
51.2 m²
3 516 €
3
2
1
1 (séparé)
2 sur 4
Sud
1
Oui
Consommations énergétiques
Logement économe
352
Logement énergivore (kWhEP/m2/an)
Émissions de gaz à effet de serre
Faible émission de GES
11
Forte émission de GES(kgeqCO2/m2/an)
Contact mon bien à la mer
Contacter gratuitement à l'aide du formulaire ci-dessous.