Beau T3 meublé avec 2 balcons et parking ? Avenue Léon Bollée, Le Mans
Le Mans 72000
0
Logement Manda ! Visitez et déposez votre dossier uniquement sur notre plateforme ! Nous ne vous enverrons jamais le bail ou le RIB par mail - tout est sécurisé sur notre plateforme.
Description du logement
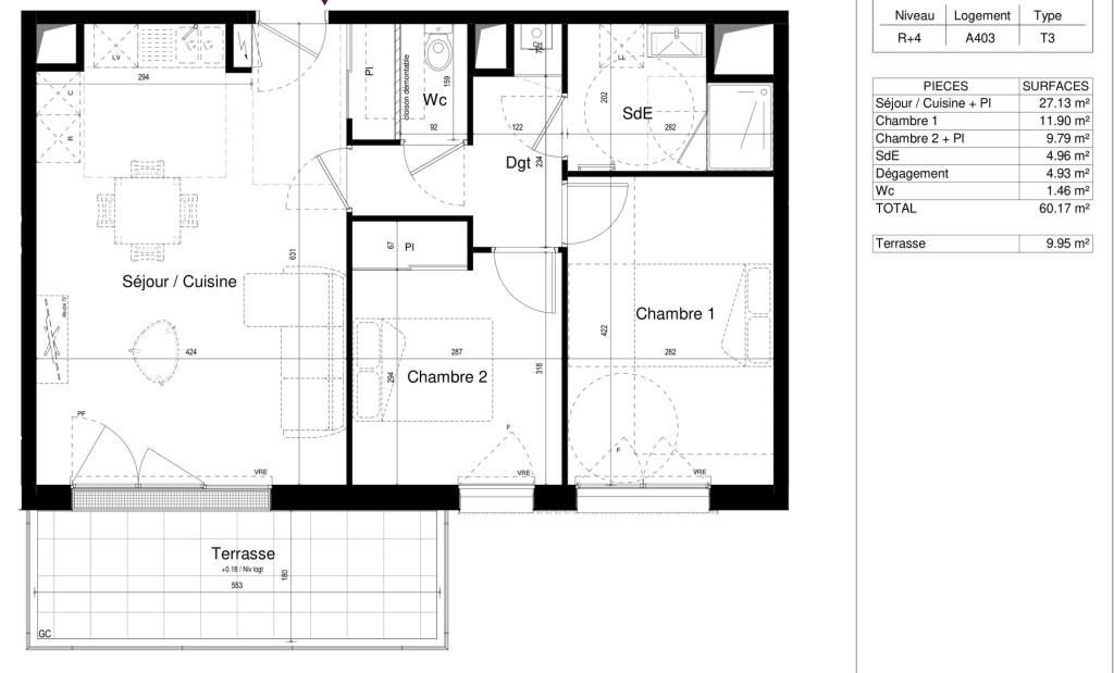
Situé au Mans, ce T3 meublé de 60 m² se trouve Avenue Léon Bollée, à proximité immédiate de l'arrêt de bus Le Mans Flore et de toutes les commodités (commerces, transports, services). L'appartement bénéficie d'un parking et de deux balcons, offrant un cadre de vie confortable et pratique.
Composition de l'appartement
Ce logement lumineux se compose de :
? Une grande pièce de vie
Spacieuse et agréable, elle s'ouvre directement sur un balcon, parfait pour profiter d'un extérieur ensoleillé.
? Deux chambres meublées
? Chaque chambre dispose d'un lit double et d'une armoire.
? L'une des chambres bénéficie également de son propre balcon, offrant un espace extérieur privé.
? Une cuisine séparée et équipée
Fonctionnelle, elle inclut tout le nécessaire pour cuisiner au quotidien.
? Une salle de bain
Équipée d'une cabine de douche moderne.
Un parking complète ce logement, un réel atout dans le secteur.
Localisation
L'adresse 64 Avenue Léon Bollée, 72000 Le Mans, offre un accès rapide :
? aux transports en commun (arrêt Le Mans Flore),
? aux commerces de proximité,
? au centre-ville et aux axes principaux.
Le quartier est pratique, agréable à vivre et bien desservi.
Disponibilité et conditions
? Disponible à partir du : 29/12/2025
? 3? étage
? Type : T3 meublé
? Superficie : 60 m²
? 2 chambres
? Loyer : 704 €
VOUS POUVEZ VISITER PLUS DE 3 000 LOGEMENTS (visite virtuelle + vidéos) ET DÉPOSER VOTRE CANDIDATURE SUR LE SITE WEB MANDA (REF : MANDA-44143)
Référence du bien : MANDA-44143
60 m²
3
2
1
3
1946
Sud
Ouest
Oui
Consommations énergétiques
Logement économe
176
Logement énergivore (kWhEP/m2/an)
Émissions de gaz à effet de serre
Faible émission de GES
5
Forte émission de GES(kgeqCO2/m2/an)
Contact Tristan Lecerf
Contacter gratuitement à l'aide du formulaire ci-dessous.