MON BIEN A LA MER, spécialiste de l'immobilier neuf en BRETAGNE, vous présente :
TRAVAUX EN COURS - Petite résidence de standing neuve en livraison pour début 2027. 21 lots. Calme et nature, commerces et collège à pied. Ascenseur, volets roulants électriques, wc suspendus,. Normes RE2020. Frais de notaire réduits.
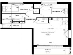
Beau T3 exposé sud ouest et sud est avec double parking, et comprenant : - Séjour 27,34m2 sur terrasse 7,88m2 - Deux Chambres 12,7(avec placard)-10m2 - Salle d'eau douche à l'italienne 5,76m2, wc séparé, entrée, dégagement
Nous Consulter
Honoraires à la charge du vendeur. Non soumis au DPE. Les informations sur les risques auxquels ce bien est exposé sont disponibles sur le site Géorisques : georisques.gouv.fr.
Votre conseiller MON BIEN A LA MER : Gérant - .fr MON BIEN A LA MER Carte T CPI 2201 2018 000 025 040 RCP ACM IARD B1 7025278
64.27 m²
4 170 €
27 m²
3
2
1
1 (séparé)
3 sur 4
Oui
2
1
Oui
Contact mon bien à la mer
Contacter gratuitement à l'aide du formulaire ci-dessous.