Bel appartement 3 chambres avec 2 BALCONS LOGGIA dans réside
Aubervilliers 93300
0
Honoraires à la charge du vendeur.
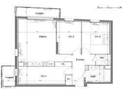
Profitez d'une opportunité inégalée pour acquérir un appartement quatre pièces de 73,86 m2 au 3 ème étage, agencé avec une attention méticuleuse pour allier luxe et respect de l'environnement. Cet appartement est un joyau dans le paysage immobilier actuel, niché dans un immeuble de dernière génération à deux pas du dynamique marché du Montfort et encadré par les lignes de métro 12 et 7. Votre futur chez-vous propose :
Un séjour/cuisine agréable : Un espace ouvert et accueillant de 24,36 M2 ouvert sur un balcon Loggia de 4,7 m2 invitant la lumière naturelle à baigner votre intérieur.
TROIS chambres bien dimensionnées : chacunes conçues pour offrir espace personnel et confort, la chambre parentale ouvre sur un autre Balcon plein OUEST. Une salle de bain élégante et spacieuse : Pour démarrer vos journées dans la sérénité ou vous détendre en soirée. WC séparé : Optimisant l'utilisation et le confort de votre nouvel espace de vie. Stationnement privé : Plus de soucis de parking avec une place dédiée en sous-sol. Des charges de copropriété avantageuses : Bénéficiez d'une gestion optimisée pour un coût mensuel réduit. Local vélo sécurisé : Pour les résidents privilégiant les déplacements écologiques et pratiques.
Un investissement pensé pour l'avenir : Avec la promesse des dernières normes environnementales, cet appartement n'est pas seulement un lieu de vie, c'est une déclaration d'un mode de vie conscient et de qualité. Cette vente flash est une occasion à saisir immédiatement pour ceux qui cherchent à habiter dans une résidence qui représente le meilleur du design moderne et de la fonctionnalité. Ne manquez pas cette chance de vous offrir un appartement où confort rime avec durabilité. Contactez-nous dès maintenant pour en savoir plus.
73.86 m²
4 020 €
8 m²
24 m²
4
3
1
1
3 sur 4
180 € / mois
2023
2 (8 m²)
Oui
1
Oui
Oui (49 lots)
Contact Nadia PEREZ - Cabinet BR Immobilier
Contacter gratuitement à l'aide du formulaire ci-dessous.