BEL APPARTEMENT DE TYPE 4, TERRASSE - 20169 BONIFACIO
Bonifacio 20169
0
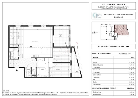
CORSE PATRIMOINE IMMOBILIER vous propose ce charmant appartement de type 4 meublé et entièrement équipé, situé dans le quartier paisible de Padurella, à proximité du splendide port de Bonifacio et niché dans un écrin de nature. Baigné de lumière grâce à son exposition plein sud, cet appartement comprend : un spacieux séjour-cuisine entièrement équipé, une suite parentale avec salle d'eau et toilette privatif, deux belles chambres, une salle d'eau d'eau, un toilette séparé, une terrasse spacieuse, une place de parking couverte pour votre confort.
Avec un Diagnostic de Performance Énergétique (DPE) classé A, cet appartement allie charme et modernité. Profitez également de frais de notaire à taux réduit, avec une possibilité de récupérer partiellement la TVA en cas d'exploitation professionnelle. Ne manquez pas cette opportunité unique d'acquérir un bien d'exception dans un cadre idyllique.
Les informations sur les risques auxquels ce bien est exposé sont disponibles sur le site Géorisques : www.georisques.gouv.fr
93 m²
5 585 €
36 m²
4
3
2
2
1
2024
Américaine
Sud
Oui
Consommations énergétiques
Logement économe
48
Logement énergivore (kWhEP/m2/an)
Émissions de gaz à effet de serre
Faible émission de GES
1
Forte émission de GES(kgeqCO2/m2/an)
Contact Corse Patrimoine Immobilier
Contacter gratuitement à l'aide du formulaire ci-dessous.