Honoraires à la charge de l'acquéreur (Prix hors honoraires : 0 euros).
Les charges de location sont prévisionnelles mensuelles avec régularisation annuelle.
La part des honoraires pour la réalisation de létat des lieux de ce bien est de 136 euros.
Appartement T2/3 de 52 m² à louer
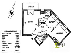
Découvrez cet appartement T2/3 de 52 m², niché au 1er étage d'un immeuble de standing, construit en 2009. Avec une surface habitable de 52 m², offrant un séjour spacieux. Avec 2 chambres, une salle de bains et un WC indépendant, cet appartement est parfait pour une personne ou un couple souhaitant un espace de vie fonctionnel et agréable. La cuisine avec 2 plaques de cuisson ainsi qu'un réfrigérateur dispose d'un cellier.
L'appartement bénéficie d'une isolation thermique intérieure, garantissant une température agréable toute l'année. Les ouvertures en PVC et les portes à double vitrage assurent une excellente isolation phonique et thermique. L'exposition nord-ouest offre une lumière naturelle douce et apaisante. Un grand balcon vous permet de profiter des beaux jours en plein air. Le stationnement extérieur est également inclus, pour un confort au quotidien. L'état intérieur et des parties communes sont en bon état, témoignant d'un entretien rigoureux.
Le chauffage individuel vous permet de maîtriser votre consommation énergétique, tandis que la fibre optique est éligible, garantissant une connexion internet haut débit.
À proximité immédiate, de nombreuses commodités sont accessibles pour simplifier votre quotidien. Un médecin généraliste se trouve à seulement 5 minutes à pied. En 5 minutes en voiture, vous rejoignez une école, une crèche ainsi qu'un parc et jardin. Un hôpital est accessible en 10 minutes en voiture. Enfin, plusieurs restaurants et les transports en commun (bus) sont situés à 15 minutes à pied.
Ne manquez pas cette opportunité de vivre dans un appartement alliant confort, fonctionnalité et bien-être. Contactez-nous dès maintenant pour une visite !
Honoraires de 386 TTC à la charge du locataire comprenant 136 TTC pour l'état des lieux. Loyer de base 364 /mois. Provision sur charges 117 /mois, régularisation annuelle. Dépôt de garantie 363 . Classe énergie D, Classe climat D Montant estimé des dépenses annuelles d'énergie pour un usage standard : entre 1029.00 et 1393.00 sur les années 2021, 2022 et 2023 (abonnements compris). Les informations sur les risques auxquels ce bien est exposé sont disponibles sur le site Géorisques : georisques.gouv.fr.
52 m²
3 m²
20 m²
3
2
1
1 (séparé)
1
386 %
117.00 € / mois
2009
Ouest
Nord
1 (3 m²)
1
Oui
Consommations énergétiques
Logement économe
187
Logement énergivore (kWhEP/m2/an)
Émissions de gaz à effet de serre
Faible émission de GES
36
Forte émission de GES(kgeqCO2/m2/an)
Contact A.I.M.E. Immobilier
Contacter gratuitement à l'aide du formulaire ci-dessous.