Bel Appartement T3 en Rez de Chaussée avec Terrasse et Garag
La-Roche-sur-Foron 74800
0
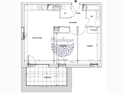
Situé dans l'un des secteurs les plus agréables de La Roche-sur-Foron, ce charmant appartement T3 de 58,33 m2 en rez-de-chaussée offre un cadre de vie rare, alliant confort moderne, praticité et douceur de vivre. Au coeur de la Haute-Savoie, cette commune authentique séduit par ses ruelles historiques, son ambiance conviviale, et sa situation stratégique entre Genève, Annecy et les grands massifs alpins.
Dès l'entrée, vous serez accueilli par un espace bien pensé avec un dégagement permettant une circulation fluide entre les différentes pièces du logement. Le séjour, ouvert sur l'extérieur et baigné de lumière, bénéficie d'un beau volume qui permet d'aménager aisément un coin salon ainsi qu'un espace repas. Sa configuration moderne offre une vraie sensation d'espace, idéale pour profiter d'un quotidien confortable, que l'on vive seul, en couple ou en famille.
L'accès direct à la terrasse privative constitue l'un des atouts majeurs de cet appartement. Cet extérieur généreux permet de profiter du calme environnant, d'aménager un coin repas en plein air ou un espace détente verdoyant selon vos envies. C'est un véritable prolongement de la pièce de vie, parfait pour profiter des beaux jours, recevoir quelques invités ou simplement savourer un moment de sérénité.
L'appartement dispose de deux chambres, chacune offrant un espace suffisant pour accueillir un lit double ou un aménagement personnalisé. Les volumes sont équilibrés et permettent une belle modularité, que l'on souhaite y installer une chambre parentale, une chambre d'enfant, un bureau ou un espace de loisirs.
La salle de bain est spacieuse, fonctionnelle et pensée pour faciliter le quotidien. Elle permet d'allier praticité et confort, avec suffisamment d'espace pour y ajouter des rangements ou optimiser son organisation selon les besoins. Le WC indépendant, situé près de l'entrée, renforce encore l'aspect fonctionnel du logement.
Un véritable avantage supplémentaire de ce bien est la présence d'un garage, rare et très recherché dans le secteur. Il apporte une sécurité appréciable et une grande praticité pour le stationnement ou le stockage.
L'appartement se situe dans une résidence récente, au design soigné, installée dans un environnement calme et agréable. Les abords sont harmonieux, les espaces verts généreux, et l'ensemble dégage une atmosphère sereine, idéale pour celles et ceux qui recherchent une vie de qualité tout en restant proches des commodités. Vous trouverez à proximité immédiate les commerces essentiels, les écoles, les restaurants, ainsi que les transports permettant de rejoindre facilement le Genevois et les grands axes alentour.
Ce T3 constitue une opportunité idéale pour un premier achat, pour une personne souhaitant s'installer confortablement dans un cadre paisible, ou pour un investisseur recherchant un bien bien placé, fonctionnel et apprécié sur le marché locatif. Ses prestations, son extérieur et son garage en font un appartement complet, attrayant et durable.
Pour tout renseignement complémentaire ou pour organiser une visite, nous nous tenons à votre disposition. Découvrez sans tarder ce bien rare qui allie modernité, confort et emplacement privilégié.
Disponibilité : 2027. Pour tout renseignement complémentaire ou pour être accompagné dans votre projet immobilier, contactez Armel de Gramont Planifique Immobilier. Planifique Immobilier Bien plus qu'une agence. Les informations sur les risques auxquels ce bien est exposé sont disponibles sur le site Géorisques : www.georisques.gouv.fr