Bienvenue dans votre futur chez-vous ! Nous vous présentons ce charmant T4 de 88,27 m² qui sera entièrement rénové. Une occasion rare d'emménager sans travaux et de profiter immédiatement d'un intérieur moderne et chaleureux. Ce bien allie structure solide et confort moderne pour un intérieur prêt à accueillir ses futurs propriétaires.
DÉCOUVREZ UN APPARTEMENT COMPOSÉ COMME SUIT :
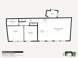
-Un vaste séjour de 44 m², avec un coin cuisine et salle à manger. -Deux chambres confortables de 12,8 et 14 m², -Une salle de bains, -Un WC indépendant.
Situé dans un quartier pratique, l'appartement est proche des commerces, ainsi que d'une école primaire à seulement 10 minutes. Un cadre de vie idéal pour allier confort et praticité au quotidien.
Contactez nous dès aujourd'hui pour organiser une visite et laissez-vous séduire par le potentiel de ce bien !
Honoraires à la charge du vendeur. Dans une copropriété de 4 lots. Aucune procédure n'est en cours. Classe énergie D, Classe climat D Montant estimé des dépenses annuelles d'énergie pour un usage standard : entre 1847.00 et 2501.00 sur les années 2021, 2022 et 2023 (abonnements compris). Les informations sur les risques auxquels ce bien est exposé sont disponibles sur le site Géorisques : georisques.gouv.fr.
88.27 m²
1 811 €
32 m²
4
2
1
1 (séparé)
2 sur 2
94.00 € / mois
1965
Est
Nord
Oui (4 lots)
Consommations énergétiques
Logement économe
223
Logement énergivore (kWhEP/m2/an)
Émissions de gaz à effet de serre
Faible émission de GES
47
Forte émission de GES(kgeqCO2/m2/an)
Contact Haris TUFEKOVIC
Contacter gratuitement à l'aide du formulaire ci-dessous.