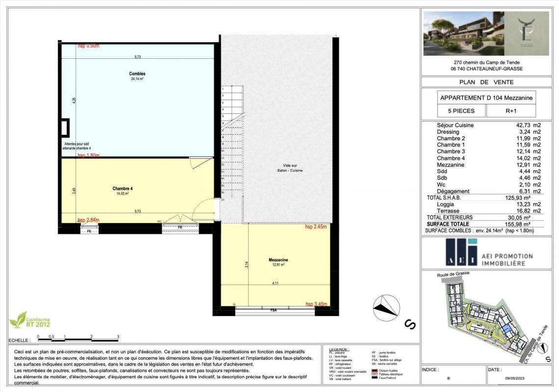
Bel appartement T4 à la vente à Chateauneuf-Grasse en bordure du golf
Châteauneuf-Grasse 06740
0
Les Résidences EAGLE, situées le long du golf de la Grande Bastide, offrent un cadre exceptionnel en bordure des greens. Nichées dans un quartier résidentiel protégé et verdoyant, elles présentent une architecture moderne qui assure une exposition optimale au soleil pour profiter des loisirs de plein air. Chaque logement bénéficie de terrasses ensoleillées, de jardins privatifs et d'une piscine de 25 mètres bordée d'oliviers, d'agrumes et de plantes exotiques.
Les appartements de 2 à 4 pièces sont spacieux, confortables et conçus pour un cadre de vie familial avec des prestations haut de gamme. À découvrir ici, un appartement de 4 pièces d'environ 134 m², avec des terrasses d'environ 60 m² orientées sud-ouest, équipé de climatisation, de volets roulants électriques, d'un ascenseur et de la fibre optique.
Idéalement situé, le domaine se trouve à proximité des villages prisés de Châteauneuf, Opio et Valbonne, au c?ur de la Provence. Châteauneuf allie charme provençal et riche patrimoine agricole, avec ses oliveraies et son plateau de chênes truffiers. La commune propose une qualité de vie dynamique, avec crèches, écoles, marché local, festivals et activités culturelles et sportives variées.
Livraison prévue au 4ème trimestre 2026.
Les informations sur les risques auxquels ce bien est exposé sont disponibles sur le site Géorisques http://georisques.gouv.fr Honoraires à la charge du vendeur
134 m²
6 993 €
4
3
1
1
1
3
Sud
Contact BLUE SQUARE
Contacter gratuitement à l'aide du formulaire ci-dessous.