Bel appartement T5 Traversant avec terrasse et Parking
Bordeaux 33100
0
Honoraires à la charge du vendeur.
UNE QUALITÉ DE VIE EXCEPTIONNELLE AUX PORTES DE BORDEAUX
Floirac, cette charmante commune aux abords de Bordeaux, séduit par sa qualité de vie incomparable. Nichée entre les rives de la Garonne et les coteaux verdoyants, Floirac offre un cadre de vie paisible tout en étant proche de l'effervescence de la métropole bordelaise.
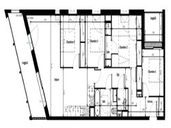
Bienvenue dans votre Nouveau Foyer : Situé au coeur de Floirac, cet appartement familial est un véritable havre de paix. Il se compose d'une entrée avec placard aménagé et d'un wc indépendant. La pièce maîtresse de cet appartement est sans aucun doute son vaste séjour baigné de lumière naturelle et prolongé d'une vaste terrasse.
Cet appartement dispose de trois belles chambres, chacune équipée de son propre placard aménagé, d'une suite parentale avec salle d'eau et placard aménagé et d'une salle de bain.
Une place de parking est également incluse avec cet appartement, vous assurant un accès facile et sécurisé à votre véhicule
UNE QUALITÉ DE VIE EXCEPTIONNELLE AUX PORTES DE BORDEAUX
Honoraires à la charge du vendeur. Dans une copropriété de 207 lots. Aucune procédure n'est en cours. DPE en cours. Les informations sur les risques auxquels ce bien est exposé sont disponibles sur le site Géorisques : georisques.gouv.fr. Ce bien vous est proposé par un agent commercial (Entreprise individuelle).