Bel ppartement familial avec vue panoramique sur l'hippodrome de
Saint-Cloud 92210
0
Honoraires à la charge du vendeur.
Saint-Cloud (92), au coeur du quartier très recherché du Val d'Or, à proximité immédiate des commerces, des écoles et des transports (transilien ligne L et tramway T2), au 5ème étage d'un immeuble de standing, sécurisé avec ascenseurs et gardien, bel appartement familial de 5 pièces avec une vue exceptionnelle et panoramique sur l'hippodrome de Saint-Cloud.
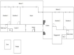
Ce bien lumineux de 131 m² se compose d'une large entrée, d'un double séjour ouvert sur un grand balcon exposé ouest faisant pleine face à l'hippodrome, d'une cuisine dinatoire équipée et aménagée avec coin buanderie, de 4 belles chambres toutes ouvertes sur balcon, d'une salle de bains, d'une salle d'eau et de deux WC séparés.
Prestations de qualité qui assurent bien-être, sécurité et un niveau de confort supérieur. En annexes, une cave et une place de stationnement en sous-sol complètent ce bien. Nous vous informons que conformément à l'article L.561-5 du Code Monétaire et Financier, une pièce d'identité vous sera demandée avant chaque visite.
131 m²
6 023 €
5
4
1
1
2 (séparés)
5 sur 9
430.00 € / mois
1971
Ouest
2
Oui
Oui
1
Oui
Oui (289 lots)
Consommations énergétiques
Logement économe
145
Logement énergivore (kWhEP/m2/an)
Émissions de gaz à effet de serre
Faible émission de GES
31
Forte émission de GES(kgeqCO2/m2/an)
Contact Praedium Agency
Contacter gratuitement à l'aide du formulaire ci-dessous.