Goodshowcase

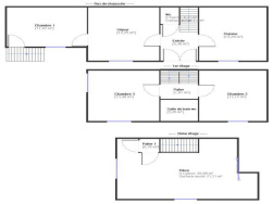
Vente maison 5 pièces
335 000 €

Contact AGENCE VERNAY

Contacter gratuitement à l'aide du formulaire ci-dessous.


Afficher le téléphone


Annonces similaires

Vente maison

Villeneuve-Saint-Georges 94190 - 0

349 000 €

...Non mitoyenne, cette maison lumineuse et spacieuse vous offre tout le confort nécessaire pour...

Voir l'annonce

Vente maison

Villeneuve-Saint-Georges 94190 - 0

304 900 €

...Elle est composé au rez de chaussée d'un séjour de 21m2 avec cheminée donnant sur une belle...

Voir l'annonce

Vente maison

Villeneuve-Saint-Georges 94190 - 0

347 000 €

...Au rez de chaussée: entrée, séjour de 22...

Voir l'annonce

Vente maison

Villeneuve-Saint-Georges 94190 - 0

378 900 €

...fr vous propose : Située au fond d'une impasse, cette belle maison indépendante de 125 m²...

Voir l'annonce

Vente maison

Villeneuve-Saint-Georges 94190 - 0

299 990 €

...61m2 habitable + sous-sol sur un terrain de 204m2 ensolleilé (orientation ouest)...

Voir l'annonce