Belle maison contemporaine proche du centre de La Richardais 4 chambres dont une chambre et salle d'eau au rez-de-chaussée
La Richardais 35780
0
Honoraires à la charge de l'acquéreur (Prix hors honoraires : 424000 euros).
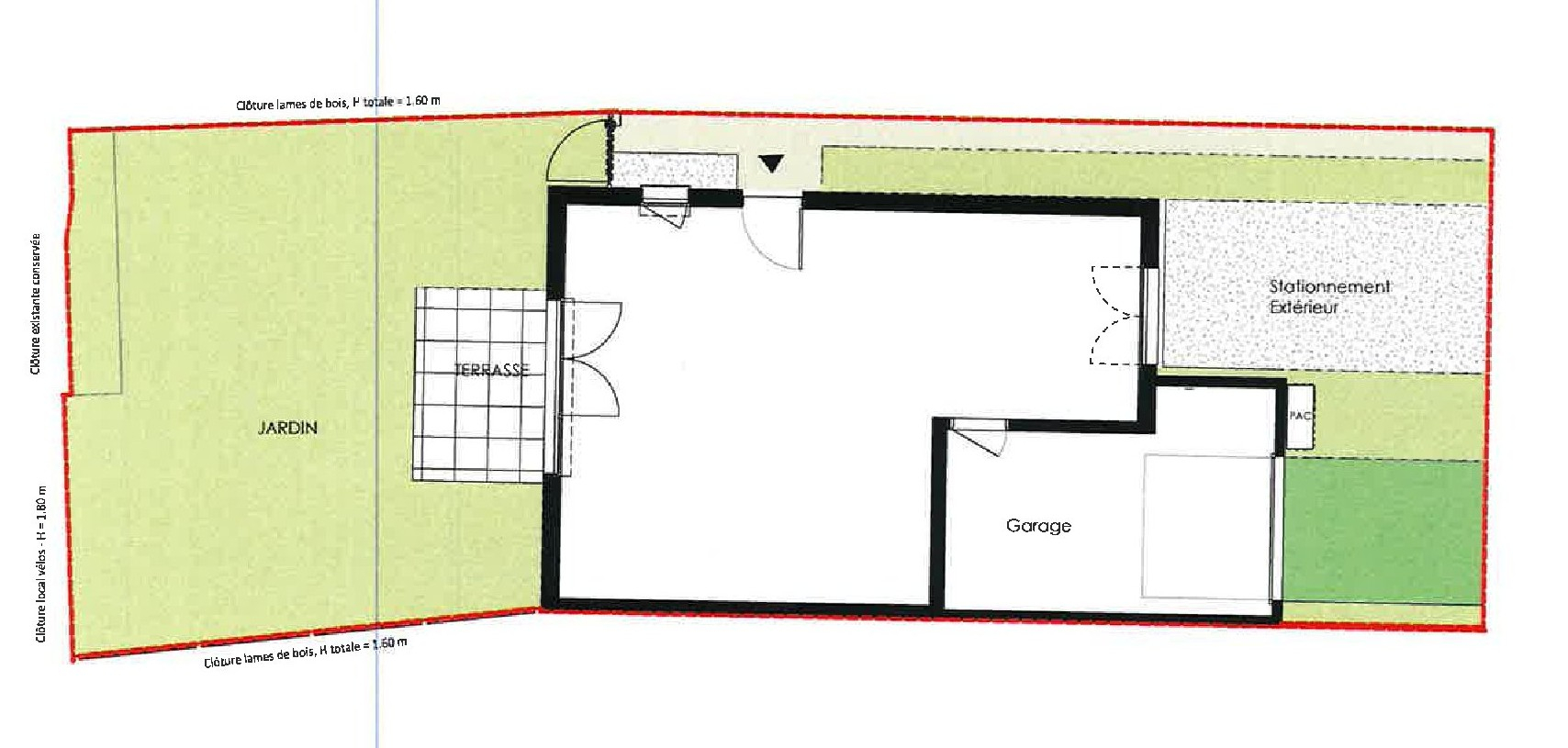
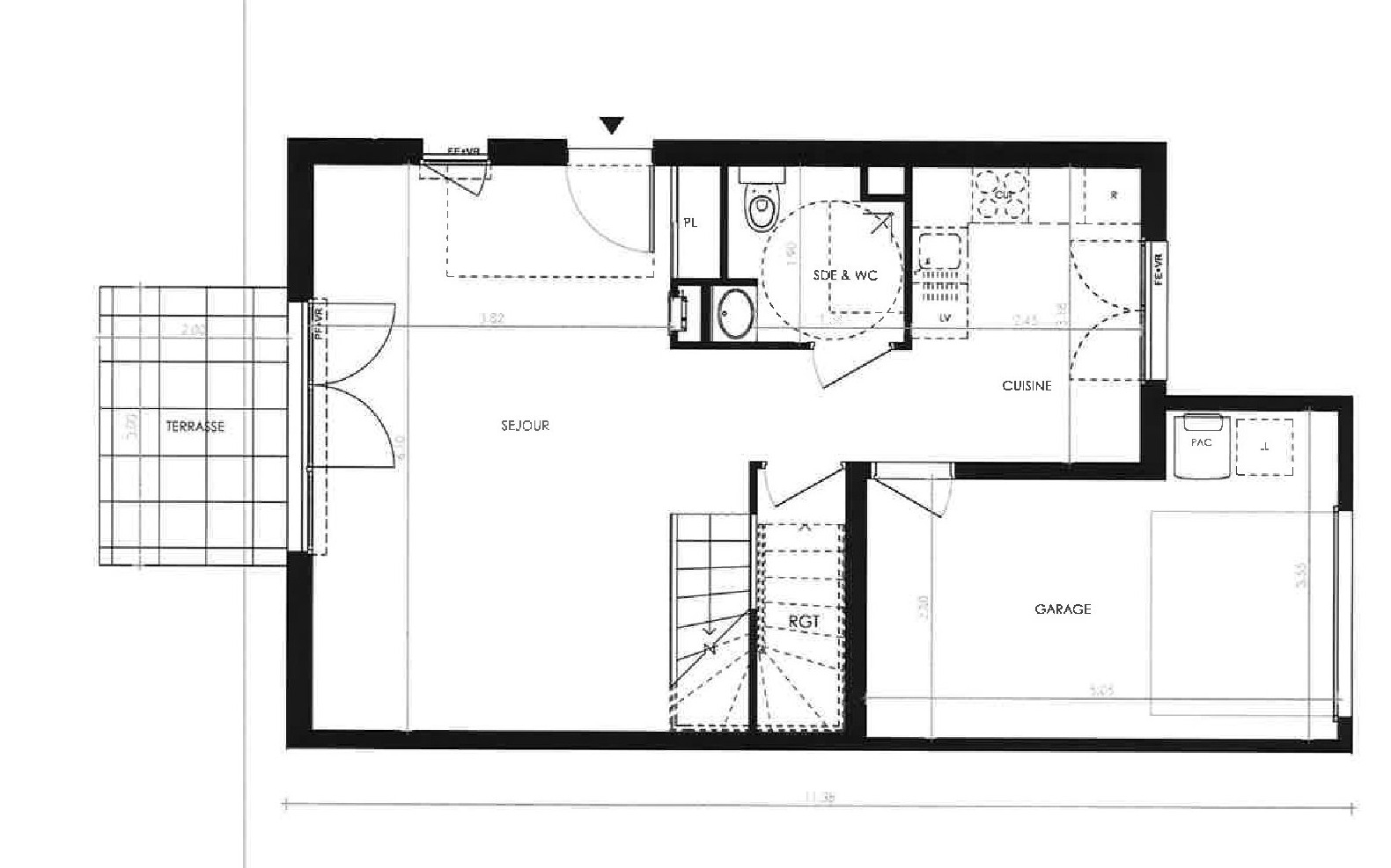
Située à proximité immédiate du centre bourg de La Richardais, Agréable maison contemporaine composée de : Au rez-de-chaussée : entrée, spacieuse pièce de vie d'environ 46 m² comprenant une cuisine aménagée, équipée, ouverte sur un salon séjour lumineux, une chambre avec salle d'eau privative, wc. A l'étage, vous trouverez trois chambres supplémentaires, une seconde salle d'eau et un wc indépendant. La maison bénéficie d'un joli jardin exposé plein sud, d'environ 300 m², idéal pour profiter des beaux jours en toute tranquillité. Pou plus d'informations et ou demande de visites, contactez l'agence emeraude à Dinard, 48 rue Levavasseur 35800 DINARD - contact@agenceemeraude.fr - 0299461101 - référence 7540 (4.80 % honoraires TTC à la charge de l'acquéreur.)