BELLEGARDE SUR VALSERINE - T4 AVEC BALCON ET GARAGE
Valserhône 01200
0
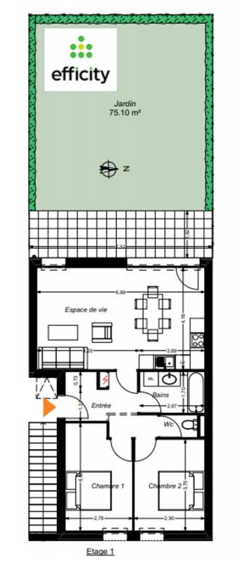
Valserhône 01200 - Entre calme naturel et vie citadine, ce T4 de plus de 84 m2en 2éme et avant dernier étage , vous offre un cadre de vie privilégié. Situé dans un environnement paisible, entre forêt et centre-ville, il allie confort, espace et accessibilité. Un emplacement rare : à la lisière de la forêt pour vos promenades et activités en plein air, tout en étant à proximité immédiate des écoles, commerces, transports et services. Ce T4 ce compose d'un hall d'entrée , une salle de bain , un séjour lumineux avec cuisine ouverte de plus de 30 m2 , une Buanderie , un coin nuit avec trois confortables chambres avec placard , des WC séparés , et une magnifique terrasse plein sud de plus de 14 m2 . En option : un garage en sous sol possible , prestations de qualités aux dernières normes , petite copropriété au calme et faibles charges. Accès autoroute en 5 minutes et à 2 minutes de la gare du Leman Express Matesa immobilier, agence immobilière spécialisée dans les programmes neufs, achat et vente appartements neufs Bellegarde-sur-Valserine 01200
84.87 m²
3 594 €
4
3
1
1
2
27/10/2027
1
Contact Matesa Immobilier
Contacter gratuitement à l'aide du formulaire ci-dessous.