ANNÉE-HOINVILLE IMMOBILIER présente ce spacieux studio avec terrasse ensoleillée.
Dans une résidence de style normand avec accès direct plage.
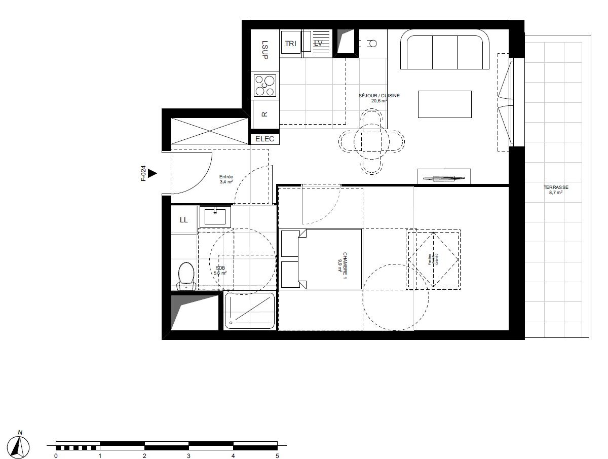
Un 1 pièce situé au rez de chaussée de la résidence,il se compose d'une pièce principale avec cuisine équipée et aménagée, une salle de douche avec wc une terrasse ensoleillée. une cave complète le bien.
Ce studio est le pied à terre idéal pour vos weekends et vacances normande.
Possibilité d'acheter un box en supplément.
Entre mer et villas, la promenade Yves Saint-Laurent longue de 600m, elle offre une belle balade iodée loin des foules, au plus proche des maisons qui la bordent. A son issue, il est possible de descendre sur la plage à marée basse pour continuer vers Blonville-sur-Mer, ou bien de grimper sur les hauteurs de Bénerville-sur-Mer en empruntant la Rue de la fontaine Marie, et ainsi rejoindre un itinéraire pédestre sur 3,6 km.
Les informations sur les risques auxquels ce bien est exposé sont disponibles sur le site Géorisques : www.georisques.gouv.fr. Conformément à l'article L.561-5 du Code monétaire et financier, une pièce d'identité sera demandée avant toute visite.
Honoraires à la charge du vendeur. Dans une copropriété de 52 lots. Quote-part moyenne du budget prévisionnel 1 346 /an. Aucune procédure n'est en cours. Classe énergie E, Classe climat B. Les informations sur les risques auxquels ce bien est exposé sont disponibles sur le site Géorisques : georisques.gouv.fr. . Les informations sur les risques auxquels ce bien est exposé sont disponibles sur le site Géorisques : www.georisques.gouv.fr Conformément à l'article L.561-5 du Code monétaire et financier, la présentation d'une pièce d'identité vous sera demandée avant toute visite.
31.08 m²
6 419 €
20 m²
1
1
1
112.00 € / mois
2008
Oui
Oui
1
Oui
Oui (52 lots)
Consommations énergétiques
Logement économe
341
Logement énergivore (kWhEP/m2/an)
Émissions de gaz à effet de serre
Faible émission de GES
10
Forte émission de GES(kgeqCO2/m2/an)
Contact Année-Hoinville Immobilier
Contacter gratuitement à l'aide du formulaire ci-dessous.