BESANCON ? Quartier Les Hauts du Chazal- Appartement T2 récent avec terrasse et garage
Besançon 25000
0
Au sein d'une résidence de 2016 composée de petits immeubles à l'architecture pavillonnaire, Elisabeth GIRARD vous propose en exclusivité un appartement traversant bénéficiant d'une grande terrasse en rez-de-jardin ainsi que d'un garage privatif situé en sous-sol.
Cet appartement est idéalement placé dans une rue calme, à proximité immédiate de la campagne et des sentiers pédestres, au coeur d'un quartier résidentiel recherché pour sa situation privilégiée à proximité de la Faculté de médecine, du CHU Minjoz et du Centre commercial de Châteaufarine.
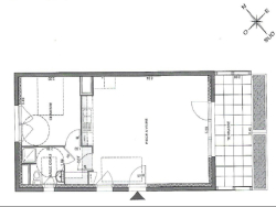
L'espace intérieur se compose d'une entrée ouverte sur une vaste pièce de vie de plus de 34,50 m², comprenant salon séjour avec cuisine aménagée et équipée. Une grande baie vitrée donne accès à la terrasse de 11 m², orientée plein sud, offrant ainsi un espace extérieur agréable et lumineux. L'appartement dispose également d'une grande chambre, d'une salle de douche avec WC et fenêtre, ainsi que d'un dégagement avec placard intégré.
Le garage privatif est accessible par une barrière sécurisée avec badge. Local à vélos. A proximité de la copropriété se trouve une aire de stationnement gratuite ainsi que les lignes de bus et la station de tramway, permettant de rejoindre facilement le centre-ville sans avoir besoin de véhicule personnel.
Ce logement à faible consommation énergétique bénéficie d'un mode de chauffage urbain.
Pour toute visite ou information complémentaire, il est recommandé de prendre contact par téléphone dès aujourd'hui.
-------------------------------------------------------------------
Prix : 165000 euros honoraires charge vendeur.
Informations DPE : Consommation énergétique classe C 116 kWh/m2/an - Émission de GES : classe B 8 kgCO2/m2/an.
Montant estimé des dépenses annuelles d'énergie pour un usage standard établi à partir des prix moyens de l'énergie indexés aux années 2021, 2022 et 2023 (abonnements compris) entre 490 euros et 730 euros.
Pour visiter et vous accompagner dans votre projet, contactez Elisabeth GIRARD, de préférence au 06.18.20.76.50 ou par courriel à e.girard@proprietes-privees.com
Selon l'article L.561.5 du Code Monétaire et Financier, pour l'organisation de la visite, la présentation d'une pièce d'identité vous sera demandée. Cette vente est garantie 12 mois.
Cette présente annonce a été rédigée sous la responsabilité éditoriale de Elisabeth GIRARD agissant sous le statut d'agent commercial immatriculé au RSAC BESANCON 521 595 066 auprès de la SAS PROPRIETES PRIVEES, au capital de 44 920 euros, ZAC LE CHÊNE FERRÉ - 44 ALLÉE DES CINQ CONTINENTS 44120 VERTOU ; SIRET 487 624 777 00040, RCS Nantes. Carte professionnelle Transactions sur immeubles et fonds de commerce (T) et Gestion immobilière (G) n° CPI 4401 2016 000 010 388 délivrée par la CCI Nantes - Saint Nazaire. Compte séquestre n°30932508467 BPA SAINT-SEBASTIEN-SUR-LOIRE (44230) ; Garantie GALIAN-SMABTP - 89 rue de la Boétie, 75008 Paris - n°28137 J pour 2 000 000 euros pour T et 120 000 euros pour G. Assurance responsabilité civile professionnelle par GALIAN-SMABTP n° de police 28137.J
Mandat réf : 431517 Le professionnel garantit et sécurise votre projet immobilier.
Copropriété de 52 lots - dont 26 lots habitation. ().
Charges annuelles : 1728 euros.
Elisabeth GIRARD (EI) Agent Commercial - Numéro RSAC : BESANCON 521 595 066 - .
Les informations sur les risques auxquels ce bien est exposé sont disponibles sur le site Géorisques : www. georisques. gouv. fr
52 m²
3 173 €
34 m²
2
1
1
2015
Aménagée
Sud
Oui
Consommations énergétiques
Logement économe
116
Logement énergivore (kWhEP/m2/an)
Émissions de gaz à effet de serre
Faible émission de GES
8
Forte émission de GES(kgeqCO2/m2/an)
Contact Iad France - Elisabeth GIRARD
Contacter gratuitement à l'aide du formulaire ci-dessous.