Honoraires à la charge de l'acquéreur (Prix hors honoraires : 65000 euros).
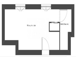
BORDEAUX CAMILLE SAUVAGEAU CÔTÉ SAINT MICHEL, À L'ENTRÉE DU QUARTIER SAINTE CROIX: SAISISSEZ CE STUDIO TRÈS CLAIR DE 13,21M2 HABITABLES LOI CARREZ ET DOTÉ DE PLAFONDS DE BELLE HAUTEUR , DANS UN JOLI IMMEUBLE DU 18ÈME . CET ENSEMBLE VOUS PROPOSE LE CALME D'UNE PETITE RUE ET UNE COUR OÙ VOUS POURREZ POSER VOTRE VÉLO. VOUS SEREZ JUSTE DERRIÈRE LES QUAIS ET PROFITEREZ PLEINEMENT DE L'ANIMATION ET DES COMMODITÉS DU QUARTIER, DONT LES LIGNES DE TRAM A/C/ ET D. CE LOGEMENT NÉCESSITERA UNE RÉNOVATION THERMIQUE:DPE DE NOVEMBRE 2021 :G/GES:19, SIMULATION 2026:F, CONSOMMATION ÉLECTRIQUE THÉORIQUE:595/805/AN CETTE OPPPORTUNITÉ VOUS INTÉRESSE? CONTACTEZ B2P IMMOBILIER AU 0556512900, B2P IMOBILIER SERA VOTRE PARTENAIRE ET VOTRE CONSEIL EN IMMOBILIER POUR TOUS VOS PROJETS DE VENTE, DE LOCATION ,DE GESTION DE VOTRE PATRIMOINE OU DE VOTRE COPROPRIÉTÉ!
Honoraires inclus de 11.15% TTC à la charge de l'acquéreur. Prix hors honoraires 65 000 . Dans une copropriété de 24 lots. Aucune procédure n'est en cours. Classe énergie G, Classe climat C Logement à consommation énergétique excessive. Montant moyen estimé des dépenses annuelles d'énergie pour un usage standard, établi à partir des prix de l'énergie de l'année 2021 : entre 595.00 et 805.00 . Les informations sur les risques auxquels ce bien est exposé sont disponibles sur le site Géorisques : georisques.gouv.fr.