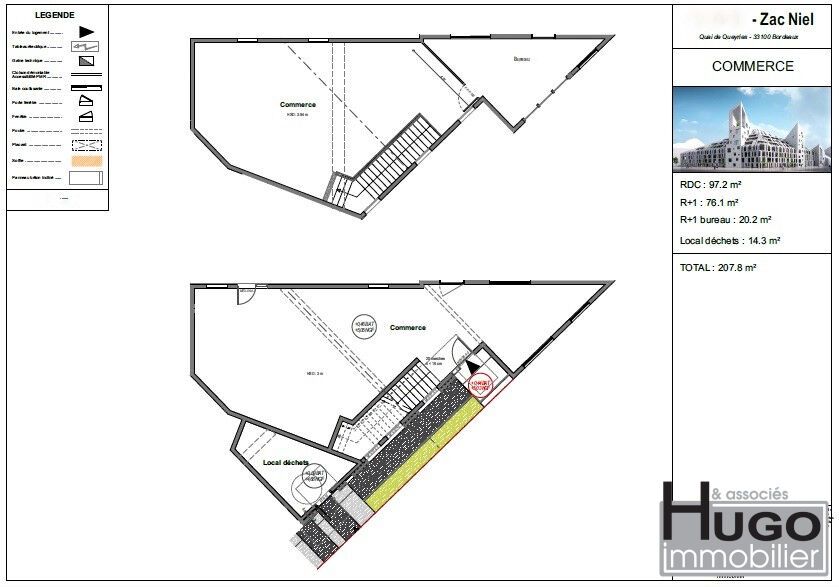
BORDEAUX CAUDÉRAN- PROCHE DU STADE BORDELAIS- LOCAL COMMERCIAL DE 150M² + TERRASSE D'ACCUEIL DE 45M² - REVENU LOCATIF 35.000 euros NET/AN ! Nous agence vous présente ce local commercial d'environ 150m2 de plain-pied situé dans le quartier de Caudéran à deux pas des transports (Bus) et des commerces de proximités. Ce local profite d'une excellente visibilité grâce notamment à son emplacement recherché et sa terrasse d'accueil de 45M2 exposée plein sud avec son linéaire de 10 mètres donnant sur un axe passant entre le centre de Caudéran ainsi que celui de Mérignac. Ce bien se compose d'un bel espace de vente ouvert, de trois bureaux fermés, d'un coin cuisine et toilette privatif pour le personnel, séparé des toilettes pour la clientèle, ainsi que de multiples rangements. Bel espace intérieur neutre grâce à ses peintures blanches récentes et son parquet flottant en bon état, prestation récente, double vitrage, volets électrique. A ce-jour cloisonné, l'espace peut être ré-ouvert afin de gagner en luminosité. Beaucoup de possibilités et d'optimisation pour ce local commercial idéal pour profession libérale... BAIL COMMERCIAL AVEC EFFET: 04/2026 et un loyer de 35.000 euros ht/hc/an + les travaux d'aménagement à la charge des locataires ! IDÉAL UTILISATEUR PROFESSIONNEL !!! HUGO IMMOBILIER et ASSOCIÉS. Hugo COLOMBIER Tel: O6.16.34.32.92.