BORDEAUX GROSSE CLOCHE : APPARTEMENT T4 AVEC ASCENSEUR
Bordeaux 33000
0
Honoraires à la charge de l'acquéreur (Prix hors honoraires : 560000 euros).
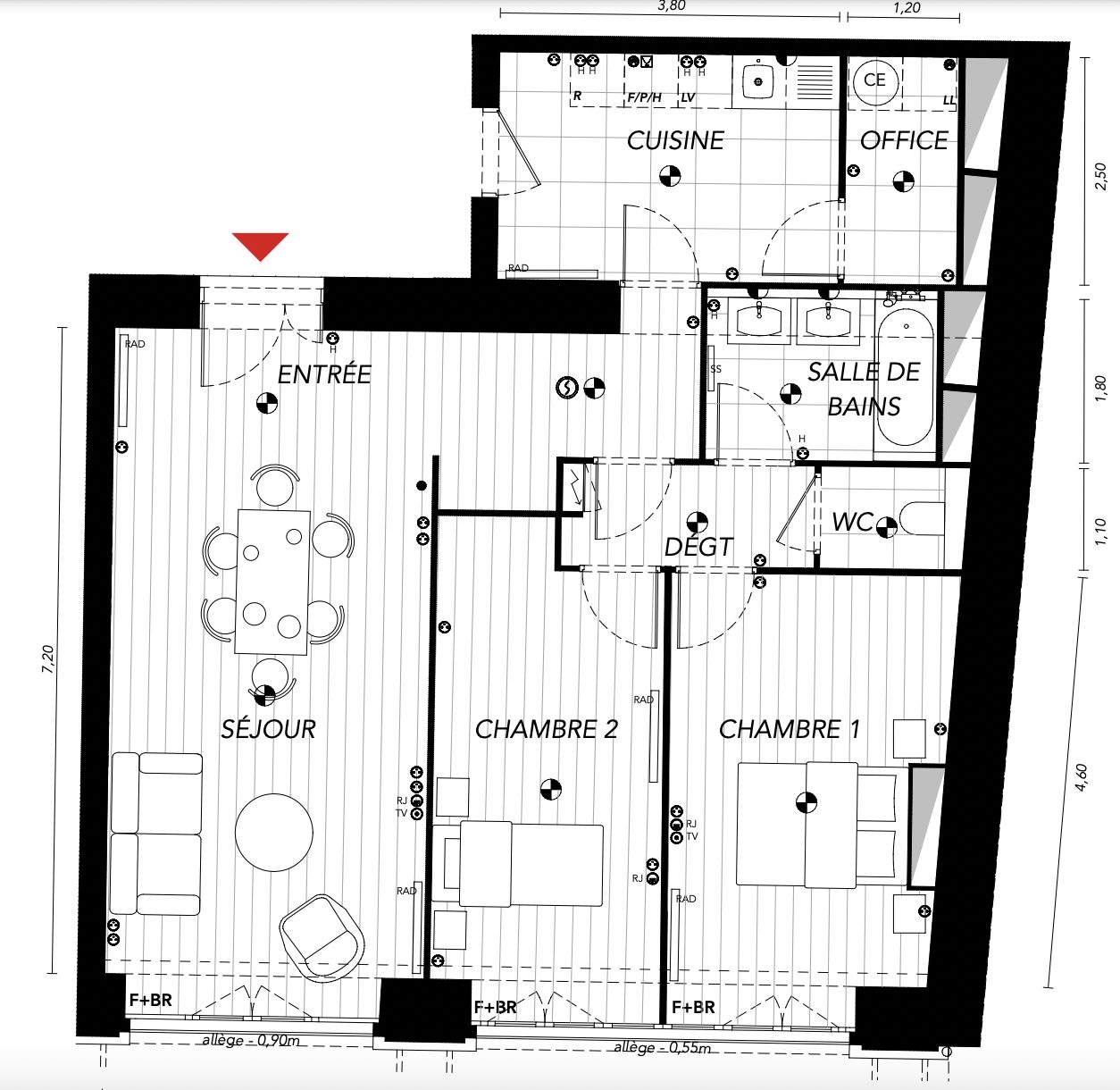
Dans un immeuble en pierre entièrement restauré, venez découvrir cet appartement situé au deuxième étage avec ascenseur.
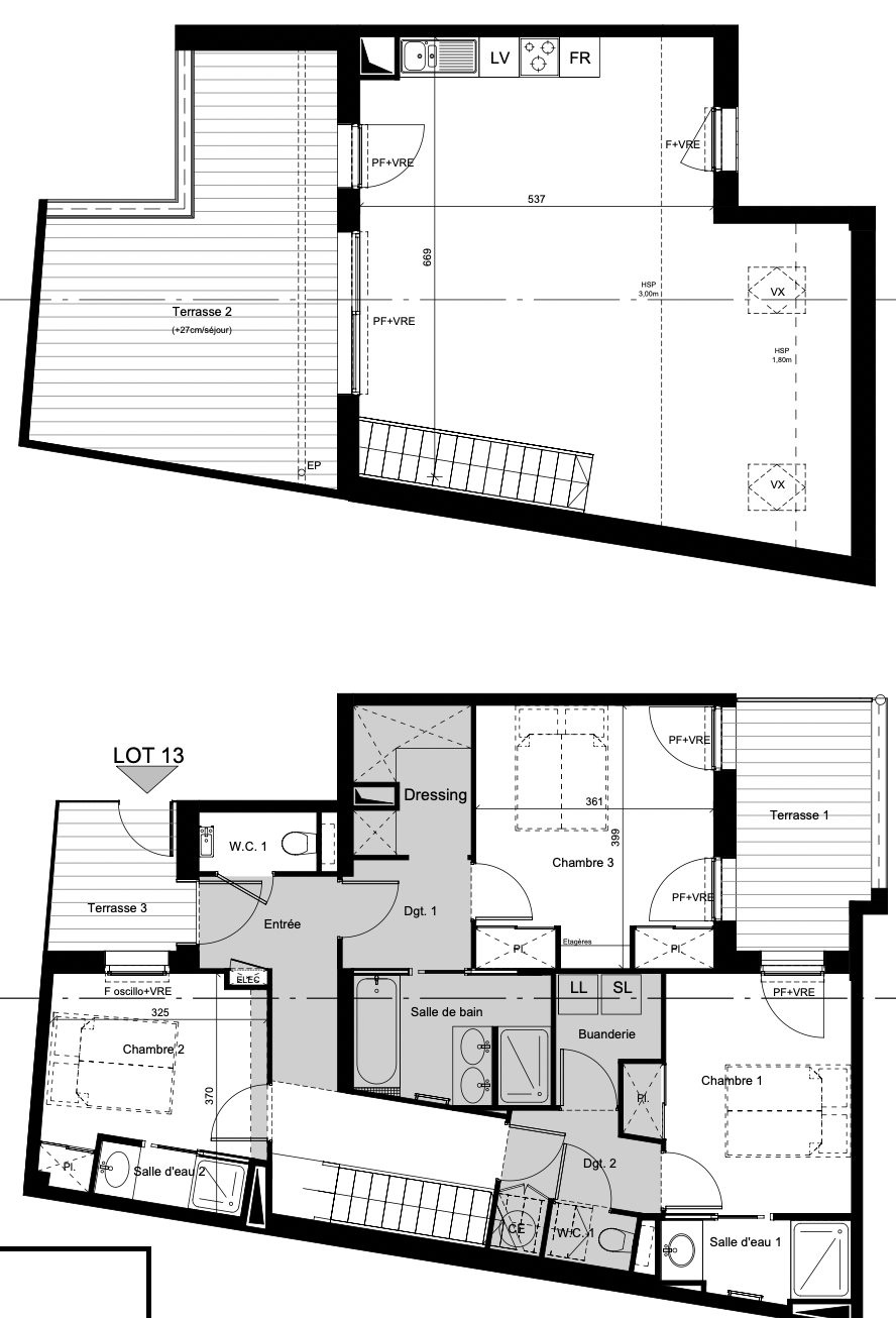
Il se compose d'une entrée avec rangement donnant sur une lumineuse pièce de vie de plus de 30 m², de trois chambres dont une suite parentale avec sa propre salle d'eau, d'un coin buanderie et d'une salle de bain.
Vous serez séduit par le charme de cet appartement, belle hauteur sous plafond, parquet, moulures. Une cave complète le bien.
Idéalement placé dans le centre de Bordeaux, les commerces et transports (Tram A, C et D) sont à proximité.
Honoraires inclus de 5% TTC à la charge de l'acquéreur. Prix hors honoraires 560 000 . Dans une copropriété de 11 lots. Aucune procédure n'est en cours. DPE en cours. Les informations sur les risques auxquels ce bien est exposé sont disponibles sur le site Géorisques : georisques.gouv.fr.