BORDEAUX ST SEURIN : APPARTEMENT T5 DE 123M2 AMÉNAGÉS AVEC TER
Bordeaux 33000
0
Honoraires à la charge du vendeur.
Rare au coeur du Quartier St Seurin : Investissez dans ce T5 en duplex de 123m2 aménagés pour 115,93m2 loi carrez agrémenté d'une très agréable terrasse ensoleillée et possibilité d'acquérir un parking pour véhicule de tout gabarit!
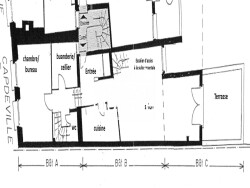
Vous découvrirez un salon donnant sur la terrasse ensoleillée , une chambre ou bureau dès le 1e niveau avec cellier/buanderie attenant, offrant la possibilité d'une salle de bains dès le plateau principal!
À l'étage , deux volumes séparés desservent: une suite composée d'un chambre avec +salle de bains/wc, et deux chambres+ salle de bains/wc.
Au rdc de l'immeuble, vous pourriez profiter d'un parking couvert spacieux et aisé d'accès de 15m2 environ à l'usage de tout gabarit de véhicule: Vous souhaitez acquérir ce parking couvert pour tout gabarit? Le prix de vente du logement avec le parking sera amené à 572400 FAI.
Vous jouirez d'un joli petit immeuble, sans travaux envisagés, Ce logement doté d'une chaudière gaz mixte est classé en DPE +GES: D ,avec une consommation énergétique théorique pour tous les usages entre 1470 et 2040/AN.
Côté commodités? vous profiterez des commerces de proximité , du marché et du jardin aménagé de la Place des Martyres de la Résistance, de l'accès à la Place Gambetta en quelques minutes et du Centre commercial Mériadeck.
Sans oublier les nombreux transports en commun, bus, Tram A Station Mériadeck , et le bus rapide G qui vous amènera rapidement à la gare!
Ce bien vous intéresse? Pour tout renseignement contactez Maison Blanche au 0556512900 ou retrouvez nous au 19 rue Fondaudège à deux pas de la Place Tourny!
Maison Blanche, vous propose conseil et expérience pour vous assister dans tous vos projets immobiliers: Vente, Location, Gestion de vos biens ou de votre Copropriété.
Honoraires à la charge du vendeur. Dans une copropriété de 2 lots. Quote-part moyenne du budget prévisionnel 1 000 /an. Aucune procédure n'est en cours. Classe énergie D, Classe climat D Montant moyen estimé des dépenses annuelles d'énergie pour un usage standard, établi à partir des prix de l'énergie de l'année 2021 : entre 1470.00 et 2040.00 . Les informations sur les risques auxquels ce bien est exposé sont disponibles sur le site Géorisques : georisques.gouv.fr.