Les charges de location sont prévisionnelles mensuelles avec régularisation annuelle.
La part des honoraires pour la réalisation de létat des lieux de ce bien est de 86.25 euros.
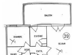
Référence G752B. Secreur Boulevard Lundy, rue Coquebert. Dans une résidence de 1995 de très bon standing, appartement T2 de 45 m2 au 3ème étage avec ascenseur, comprenant une entrée avec placards, un séjour de 20.60m2 donnant sur un balcon de 17m 2, une cuisine carrelée et aménagée, une chambre de 9.47m2, une salle de bains, wc, parking en sous-sol Disponible le 25/03/2026. Loyer HC : 575.00EUR/Mois - Charges : 65.00EUR/Mois - TOM : 16.00EUR/Mois - Dépôt de garantie : 575.00EUR/Mois - Frais d'agence : 402.50EUR. Retrouvez l'ensemble de nos offres sur notre site www.marcille-immobilier.com
45 m²
20 m²
2
1
1
1
3 sur 5
402.5 %
18/06/2024
65 € / mois
1995
Oui
Oui (97 lots)
Consommations énergétiques
Logement économe
179
Logement énergivore (kWhEP/m2/an)
Émissions de gaz à effet de serre
Faible émission de GES
5
Forte émission de GES(kgeqCO2/m2/an)
Contact Marcille Immobilier
Contacter gratuitement à l'aide du formulaire ci-dessous.