Honoraires à la charge de l'acquéreur (Prix hors honoraires : 586900 euros).
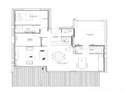
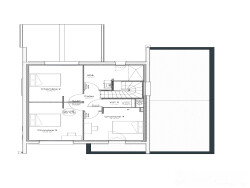
BOURG, PROJET DE CONSTRUCTION SUR 1 690 M² ! Dans environnement privilégié, projet de construction d'une maison haut de gamme (basse consommation) de 145 m² habitables offrant entrée, vaste salon-séjour lumineux de 51,5 m² avec cuisine ouverte, arrière-cuisine, quatre belles chambres dont une suite parentale au rez-de-chaussée, bureau, salle de bains, salle d'eau. Garage. Chauffage par le sol (aérothermie). Prestations de qualité. Personnalisation possible. Construction d'un plain-pied possible. Jardin clos, intime et arboré. Terrain de 1690 m². Proximité immédiate du bourg. Rare sur le marché !
Honoraires inclus de 2.22% TTC à la charge de l'acquéreur. Prix hors honoraires 586 900 . Les informations sur les risques auxquels ce bien est exposé sont disponibles sur le site Géorisques : georisques.gouv.fr.