BRUGES - T3 lumineux avec jardin privatif et parking
Bruges 33520
0
Honoraires à la charge du vendeur.
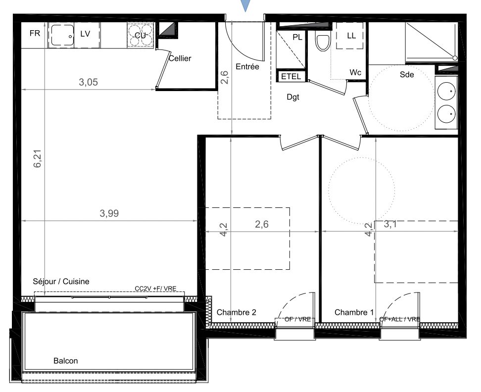
BRUGES / PROCHE RAVEZIES - À proximité immédiate du tramway (arrêt Cracovie), offrant un accès direct au centre-ville de Bordeaux, venez découvrir ce très bel appartement T3 en parfait état, situé au rez-de-chaussée d'une résidence récente. D'une surface confortable de 74 m2, cet appartement séduit par sa belle luminosité et ses prestations de qualité (grande hauteur sous plafond, volets électriques...). Il se compose d'un spacieux séjour ouvert sur une cuisine haut de gamme signée Arthur Bonnet, avec un accès direct à une grande terrasse et un jardin privatif exposé plein Sud. Le bien comprend également un cellier attenant à la cuisine, un espace nuit bien séparé, avec deux chambres et une salle de bain moderne ainsi qu'un WC séparé. Pour votre confort, une place de stationnement privative est incluse. Cet appartement est idéal pour un jeune couple, un investisseur ou toute personne souhaitant profiter d'un cadre de vie agréable à deux pas des commodités et des transports en commun. Les + : Jardin au calme Résidence récente Tram à pied Exposition Sud Prestations de qualité. Contactez-nous pour organiser une visite sans tarder : Fanny Dupain Immobilier au 06 87 42 68 97 !
73.51 m²
4 067 €
33 m²
41 m²
3
2
1
1
2023
Sud
Oui
1
1
Oui (65 lots)
Consommations énergétiques
Logement économe
51
Logement énergivore (kWhEP/m2/an)
Émissions de gaz à effet de serre
Faible émission de GES
7
Forte émission de GES(kgeqCO2/m2/an)
Contact Fanny Dupain Immobilier
Contacter gratuitement à l'aide du formulaire ci-dessous.