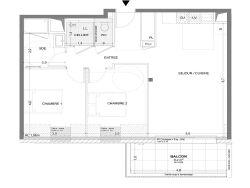
Bruz - Appartement 3 pièces 63.60m² Sh - (66,83 m² en surface utile) - Sud- 2ème étage - ascenseur - balcon 8.17m² - stationnement en sous-sol sécurisé. A seulement 9 kms au sud-ouest de Rennes, à proximité de l'hyper centre, des écoles et des commerces, cet appartement 3 pièces situé au deuxième étage avec ascenseur d'une résidence contemporaine conforme aux normes environnementales RT2020 permettant une haute performance énergétique et acoustique. D'une surface habitable de 63.60m² (pour une surface utile totale de 66.83 m²), cet appartement exposé au Sud se compose d'une entrée avec placard, d'un séjour lumineux avec cuisine ouverte donnant accès à un balcon de 8.17 m². L'espace nuit comprend un dégagement, deux chambres, une salle d'eau moderne, un WC indépendant et un cellier offrant un rangement pratique. Un stationnement privatif en sous-sol complète cet ensemble. Local vélo. Côté mobilité, la localisation est idéale : la gare TER de Bruz permet de rejoindre Rennes en seulement 10 minutes, les lignes de bus STAR facilitent les déplacements locaux, et la proximité de l'aéroport Rennes Bretagne renforce la connectivité de ce bien. Prix promoteur - frais de notaire réduits, Les informations sur les risques auxquels ce bien est exposé sont disponibles sur le site Géorisques : www.georisques.gouv.fr. Copropriété de 39 lots - dont 17 lots habitation. (Pas de procédure en cours). Charges annuelles : 907 euros.