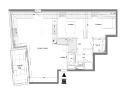
Bruz - Appartement 3 pièces 76.34m² Ouest - 2ème étage - ascenseur - loggia 7.49m² - garage en sous-sol sécurisé. A seulement 9 km au sud-ouest de Rennes, découvrez cet appartement 3 pièces situé au deuxième étage d'une résidence contemporaine conforme aux normes environnementales RT2020. Cette résidence se distingue par sa haute performance énergétique et acoustique, offrant un confort optimal au coeur de Bruz, à proximité immédiate du marché, des écoles, et des commerces du centre-ville. D'une surface habitable de 76,34 m² (pour une surface utile totale de 87,08 m²), ce bel appartement exposé à l'Ouest se compose d'une entrée avec placard, d'un vaste séjour lumineux avec cuisine ouverte donnant accès à une agréable loggia de 7,49 m², parfaite pour profiter des fins de journée ensoleillées. L'espace nuit comprend deux chambres, une salle d'eau moderne, un WC indépendant et un cellier offrant un rangement pratique. Un garage sécurisé en sous-sol complète cet ensemble. Côté mobilité, la localisation est idéale :la gare TER de Bruz permet de rejoindre Rennes en seulement 10 minutes, les lignes de bus STAR facilitent les déplacements locaux, et la proximité de l'aéroport Rennes Bretagne renforce la connectivité de ce bien recherché. Cet appartement combine modernité, confort et praticité au coeur d'une commune dynamique et prisée de la métropole rennaise ? un cadre de vie idéal pour résider ou investir à Bruz. Prix promoteur - frais de notaire réduits, Les informations sur les risques auxquels ce bien est exposé sont disponibles sur le site Géorisques : www.georisques.gouv.fr. Copropriété de 39 lots - dont 17 lots habitation. (Pas de procédure en cours). Charges annuelles : 1094 euros.