BRUZ - Appartement 3 pièces 85.80m² avec jardin de 67.79m² et terrasse de 8.62m²- stationnement
Bruz 35170
0
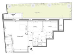
Bruz - Appartement 3 pièces 85.80m² avec jardin de 67.79m² et terrasse 8.62m² - loggia de 6.36m², stationnement en sous-sol sécurisé - local vélo. Proche de l'hyper centre de Bruz, des écoles et des commerces, cet appartement 3 pièces est situé en rez-de-jardin d'une résidence contemporaine conforme aux normes environnementales RT2020. D'une surface habitable de 85.80m², cet appartement se compose d'une entrée avec placard, d'un séjour salon avec cuisine ouverte donnant accès à une terrasse de 8.62m² et un jardin de 67.79m², ainsi qu'à une loggia exposé à l'Ouest de 6.36m² . L'espace nuit comprend un dégagement, deux chambres, une salle d'eau, un WC indépendant et un cellier offrant un rangement pratique. Autre cellier à l'extérieur. Un stationnement privatif en sous-sol complète cet ensemble. Local vélo. Côté mobilité, la localisation est idéale : la gare TER de Bruz permet de rejoindre Rennes en seulement 10 minutes, les lignes de bus STAR facilitent les déplacements locaux, et la proximité de l'aéroport Rennes Bretagne renforce la connectivité de ce bien. Prix promoteur - frais de notaire réduits, Les informations sur les risques auxquels ce bien est exposé sont disponibles sur le site Géorisques : www.georisques.gouv.fr. Copropriété de 39 lots - dont 17 lots habitation. (Pas de procédure en cours). Charges annuelles : 1224 euros.