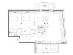
Bruz - Appartement 4 pièces 83.97m² Surface habitable - Sud - Surface utile : 97,25 m² - 2ème étage - ascenseur - balcons 18m² - garage en sous-sol sécurisé. A seulement 9 kms au sud-ouest de Rennes, proche de l'hyper centre, des commerces et commodités, découvrez cet appartement 4 pièces, situé au deuxième étage d'une résidence contemporaine avec ascenseur et conforme aux normes environnementales RT2020 offrant une haute performance énergétique et acoustique. D'une surface habitable de 83.97m² (pour une surface utile totale de 97.25 m²), cet appartement exposé au Sud se compose d'une entrée avec placard, dégagement, d'un vaste séjour salon avec cuisine ouverte donnant accès à deux balcons de 10.27m² et 7.74m². L'espace nuit comprend un dégagement, trois chambres, deux salle d'eau, un WC indépendant et un cellier offrant un rangement pratique. Un garage sécurisé en sous-sol complète cet ensemble. Côté mobilité, la localisation est idéale : la gare TER de Bruz permet de rejoindre Rennes en seulement 10 minutes, les lignes de bus STAR facilitent les déplacements locaux, et la proximité de l'aéroport Rennes Bretagne renforce la connectivité de ce bien. Prix promoteur - frais de notaire réduits, Les informations sur les risques auxquels ce bien est exposé sont disponibles sur le site Géorisques : www.georisques.gouv.fr. Copropriété de 39 lots - dont 17 lots habitation. (Pas de procédure en cours). Charges annuelles : 1200 euros.