BRUZ - Appartement 4 pièces 96.31m² Sud - terrasse de 14.08m² et jardin de 194.96m² - garage
Bruz 35170
0
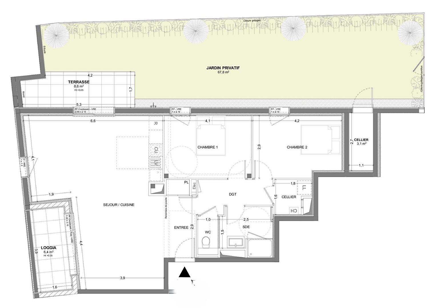
Bruz - Appartement 4 pièces 96.31m² Sud - terrasse de 14.08m² et jardin de 194.96m² - garage-en sous-sol sécurisé - cellier Proche de l'hyper centre, des commerces et commodités, découvrez cet appartement 4 pièces, situé en rez-de-jardin d'une résidence contemporaine conforme aux normes environnementales RT2020, offrant une haute performance énergétique et acoustique. D'une surface habitable de 96.31m², cet appartement exposé au Sud se compose d'une entrée avec placard, dégagement, d'un vaste séjour salon avec cuisine, ouvrant sur le jardin de 194.96m² et à la terrasse de 14.08m². L'espace nuit comprend un dégagement, trois chambres, deux salle d'eau, un WC indépendant et un cellier offrant un rangement pratique. Un garage sécurisé en sous-sol complète cet ensemble ainsi qu'un cellier. Côté mobilité, la localisation est idéale : la gare TER de Bruz permet de rejoindre Rennes en seulement 10 minutes, les lignes de bus STAR facilitent les déplacements locaux, et la proximité de l'aéroport Rennes Bretagne renforce la connectivité de ce bien. Prix promoteur - frais de notaire réduits, Les informations sur les risques auxquels ce bien est exposé sont disponibles sur le site Géorisques : www.georisques.gouv.fr. Copropriété de 39 lots - dont 17 lots habitation. (Pas de procédure en cours). Charges annuelles : 1200 euros.