BRUZ Centre-Ville - 4 pièces de 88 m² avec terrasse et jardin
Bruz 35170
0
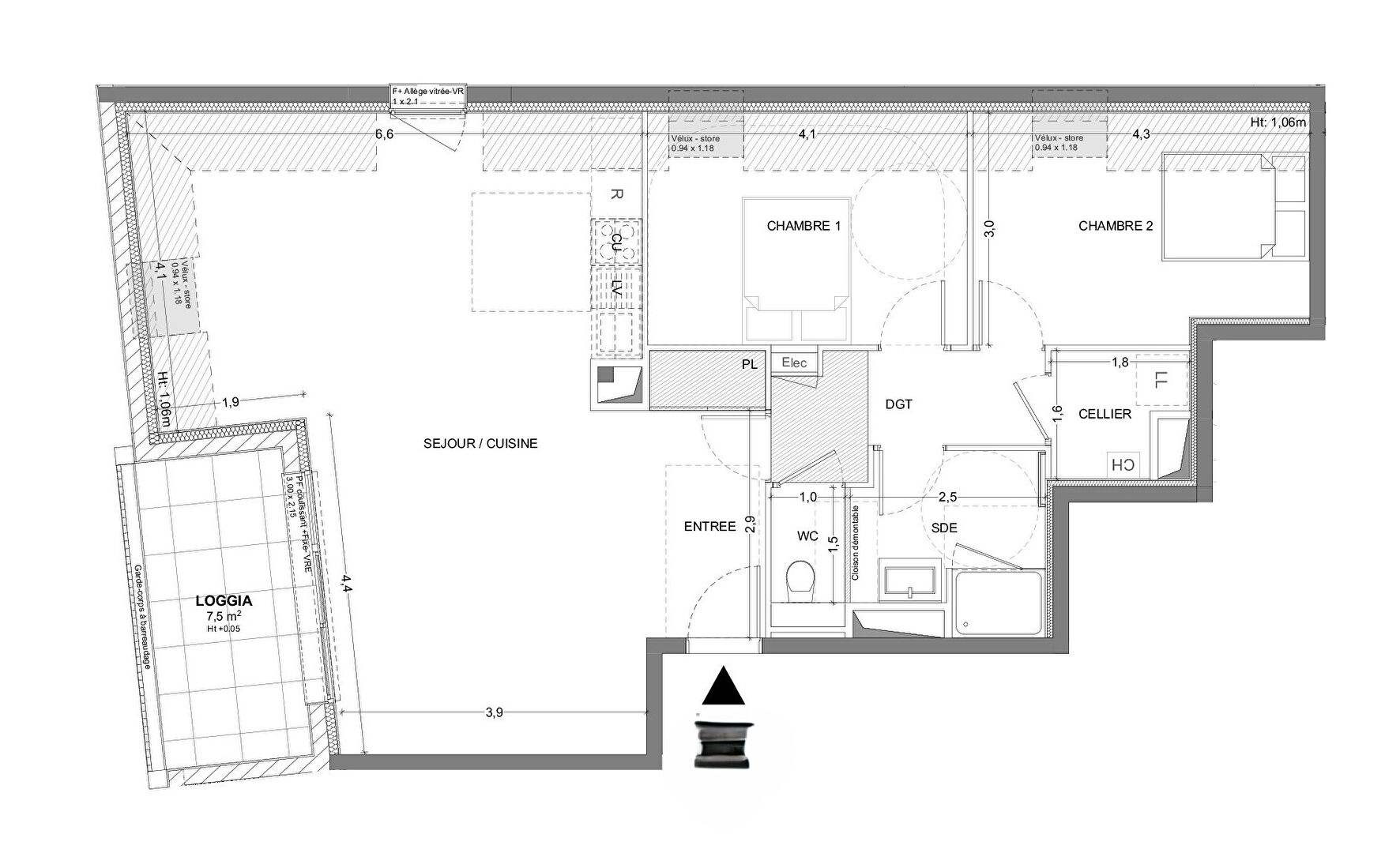
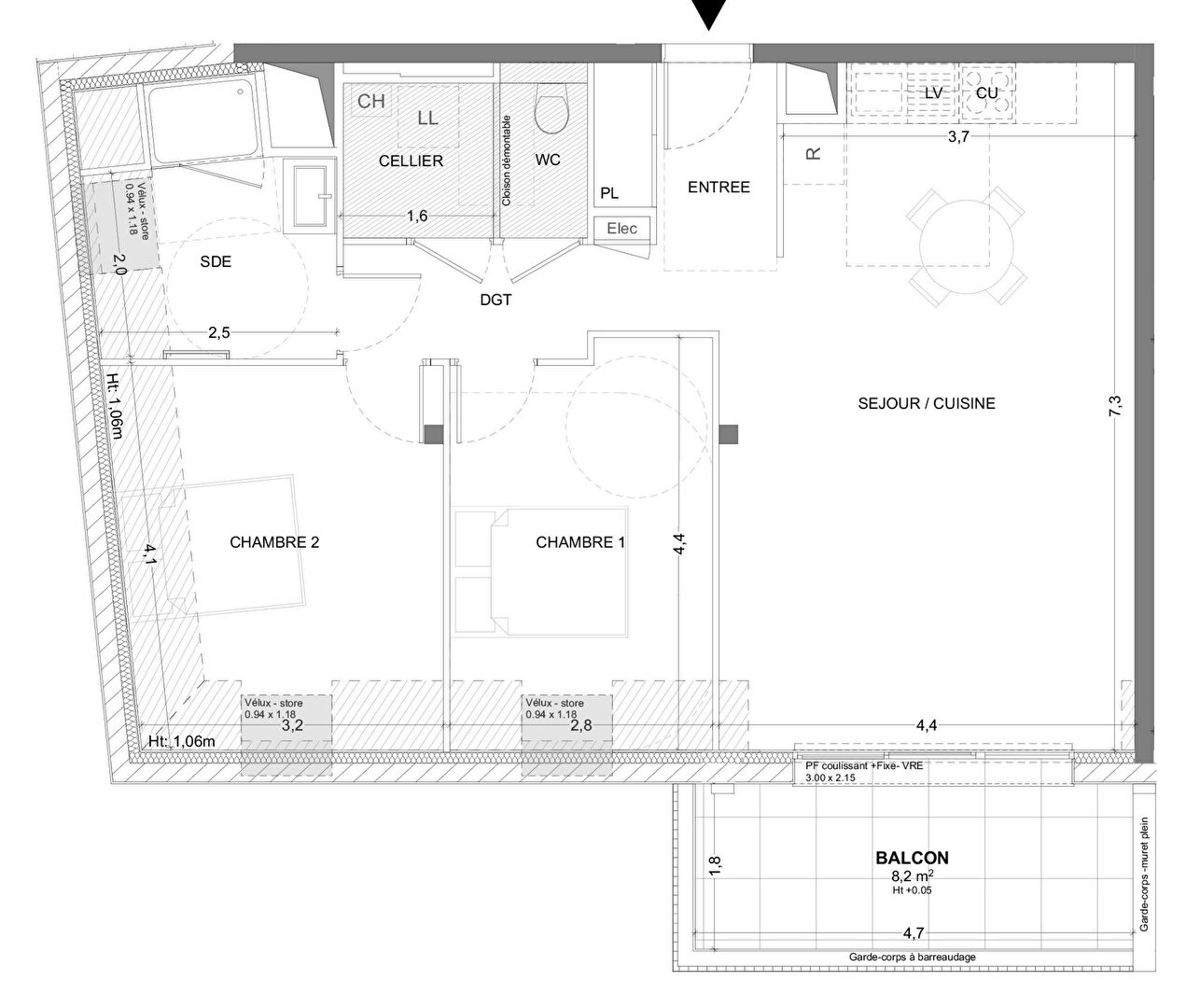
COGIR Neuf vous propose : A proximité immédiate du centre-ville de Bruz et 15 min de RENNES, venez découvrir cette résidence de seulement 9 logements où vous trouverez cet appartement T4 composé d'une entrée avec placard, un séjour-cuisine de 30 m², 3 chambres dont une suite parentale, 2 salles d'eau et des WC séparé. L'appartement bénéficie également d'une spacieuse terrasse de 31 m² donnant sur un jardin privatif de 129 m² exposés Ouest et de 2 stationnements ! T3 à partir de 312 000.00 euros TTC T4 à partir de 419 000.00 euros TTC Corinne BOUFFORT : 06.08.47.94.30 - CBN9421