Bureau Exceptionnel à Louer - Espace Moderne et Confortable
Asnières-sur-Seine 92600
0
Honoraires à la charge de l'acquéreur (Prix hors honoraires : 0 euros).
Les charges de location sont prévisionnelles mensuelles avec régularisation annuelle.
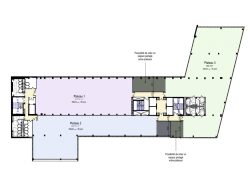
Découvrez ce bureau spacieux et lumineux, situé au 1er étage d'un immeuble récent construit en 2020. Avec une surface de 374,61 m², cet espace peut accueillir jusqu'à 85 personnes, offrant un environnement de travail idéal pour votre entreprise.
Ce bureau est actuellement libre et se trouve en excellent état, tant à l'intérieur qu'en ce qui concerne les parties communes. Les ouvertures en PVC/aluminium et les portes à triple vitrage garantissent une isolation optimale, tandis que la hauteur sous plafond de 3,50 m ajoute une touche de grandeur à l'espace.
Profitez d'une vue dégagée et d'un parking privé pour faciliter vos déplacements. Le chauffage collectif assure un confort thermique optimal tout au long de l'année. De plus, ce bureau est conforme aux normes ERP et PMR, et dispose de sanitaires.
Le loyer est de 8 959,42 HTVA, toutes charges comprises. Ne manquez pas cette opportunité de louer un espace de travail haut de gamme, parfait pour développer votre activité.
À proximité, vous trouverez plusieurs commodités pratiques, dont un supermarché à 5 minutes en voiture et plusieurs restaurants à moins de 10 minutes à pied.
Honoraires de 18 495 à la charge du locataire. Provision sur charges 3 425 /mois, régularisation annuelle. Dépôt de garantie 30 333 . Non soumis au DPE. Les informations sur les risques auxquels ce bien est exposé sont disponibles sur le site Géorisques : georisques.gouv.fr.