Bureau + T2 Aix-en-Provence Célony - AVEC OPTION ACHAT TERRA
Aix-en-Provence 13100
0
Honoraires à la charge du vendeur.
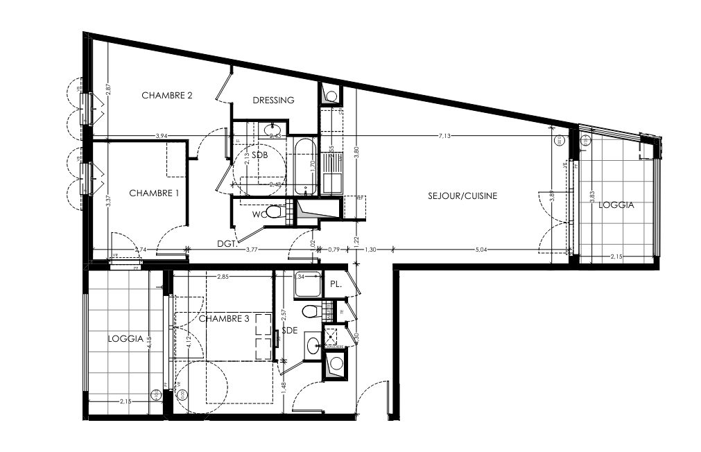
Le Cabinet de Pierrefeu vous propose à la vente un plateau de 110 m2 environ et son T2 de 39 m2 sur Aix en Provence Quartier de Celony. Résidence arborée récente avec piscine et gardien. Une partie bureau composée de 3 pièces de 18 m2 environ chacune, une salle d'attente de 12 m2 environ et une partie bureau de 10 m2 environ. Une cuisine séparée Un espace independant avec 2 wcs. 2 pièces de stockage de 7 m2 environ chacune. Un T2 de 39 m2 environ comprenant halle d'entrée, pièce à vivre, cuisine ouverte et salle d'eau avec wcs. Idéal professions libérales et investisseurs. Pour plus de renseignements, contact 06.24.56.06.57
150 m²
3 193 €
6
2007
Est
Ouest
Oui
Oui
Oui
Oui
Consommations énergétiques
Logement économe
199
Logement énergivore (kWhEP/m2/an)
Émissions de gaz à effet de serre
Faible émission de GES
6
Forte émission de GES(kgeqCO2/m2/an)
Contact CABINET DE PIERREFEU
Contacter gratuitement à l'aide du formulaire ci-dessous.