Honoraires à la charge de l'acquéreur (Prix hors honoraires : 0 euros).
Les charges de location sont prévisionnelles mensuelles avec régularisation annuelle.
Opportunité rare !
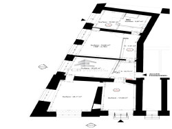
TCB Immobilier d'entreprise vous propose à la location au coeur de l'hypercentre de Nantes, un local avec vitrine et visibilité, actuellement à usage tertiaire, de 107 m2 environ. Situé proche de la place Graslin et du Cours Cambronne, il est composé comme suit :
- Accueil - 3 Bureaux - WC PMR - Salle de pause - Cave (stock archives) - Local velo
L'ensemble est très lumineux, câblé RJ45, double vitrage, fibre.
Proche transport et toutes commodités.
Le terrain est concerné par une mixité fonctionnelle (hypercentre à vocation commerciale et tertiaire).
Honoraires agence : 8 640 HT - 10 368 TTC Soit : 30 % HT du montant du loyer annuel HT.
Honoraires de 8 640 HT à la charge du locataire. Provision sur charges 130 /mois, régularisation annuelle. Dépôt de garantie 7 200 . DPE en cours. Les informations sur les risques auxquels ce bien est exposé sont disponibles sur le site Géorisques : georisques.gouv.fr.