BUREAUX 177 m2 - 6 Places de Stationnement - ZI LES PLAYES -
Six-Fours-les-Plages 83140
0
Honoraires à la charge du vendeur.
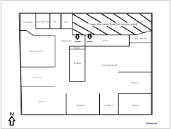
SIX-FOURS : Dans La Zone des Playes, plateau de bureaux climatisés de 176,62 m2 traversants EST/OUEST formant la totalité du 1er étage (sans ascenseur) du batiment, avec 6 places de stationnement privatives. Composition actuelle : Partie EST : Un espace d'acceuil, un bureau indépendant, un 'open space' d'env. 60m2 (diverses possibilités d'aménagement) ,un local ménage et accès indépendant. Sur la partie OUEST : un 'open space' d'env 45m2 ouvert sur l'open space EST, une salle de reunion , un coin cuisine, deux wc indépendants, un local technique 'adsl', une salle d'archive, degagement, placard et accés indépendant. Les locaux sont en bon état et ne nécessitent aucun travaux. Ils offrent une excellente luminosité grâce aux nombreuses fenêtre sur les faces EST et OUEST du local. Zone industrielle dynamique, accès rapide autoroute et transports - Usage bureaux uniquement Non ERP Pas d'accessibilité PMR Libre au 01/12/2025 Charges annuelles : 1697 Euros Taxe foncière : 3000 Euros Bien soumis au statut de la copropriété
176.62 m²
2 259 €
1697 € / mois
1979
Oui
Oui
Consommations énergétiques
Logement économe
152
Logement énergivore (kWhEP/m2/an)
Émissions de gaz à effet de serre
Faible émission de GES
4
Forte émission de GES(kgeqCO2/m2/an)
Contact
Contacter gratuitement à l'aide du formulaire ci-dessous.