Honoraires à la charge de l'acquéreur (Prix hors honoraires : 0 euros).
Les charges de location sont prévisionnelles mensuelles avec régularisation annuelle.
Rue St Denis - Paris 2
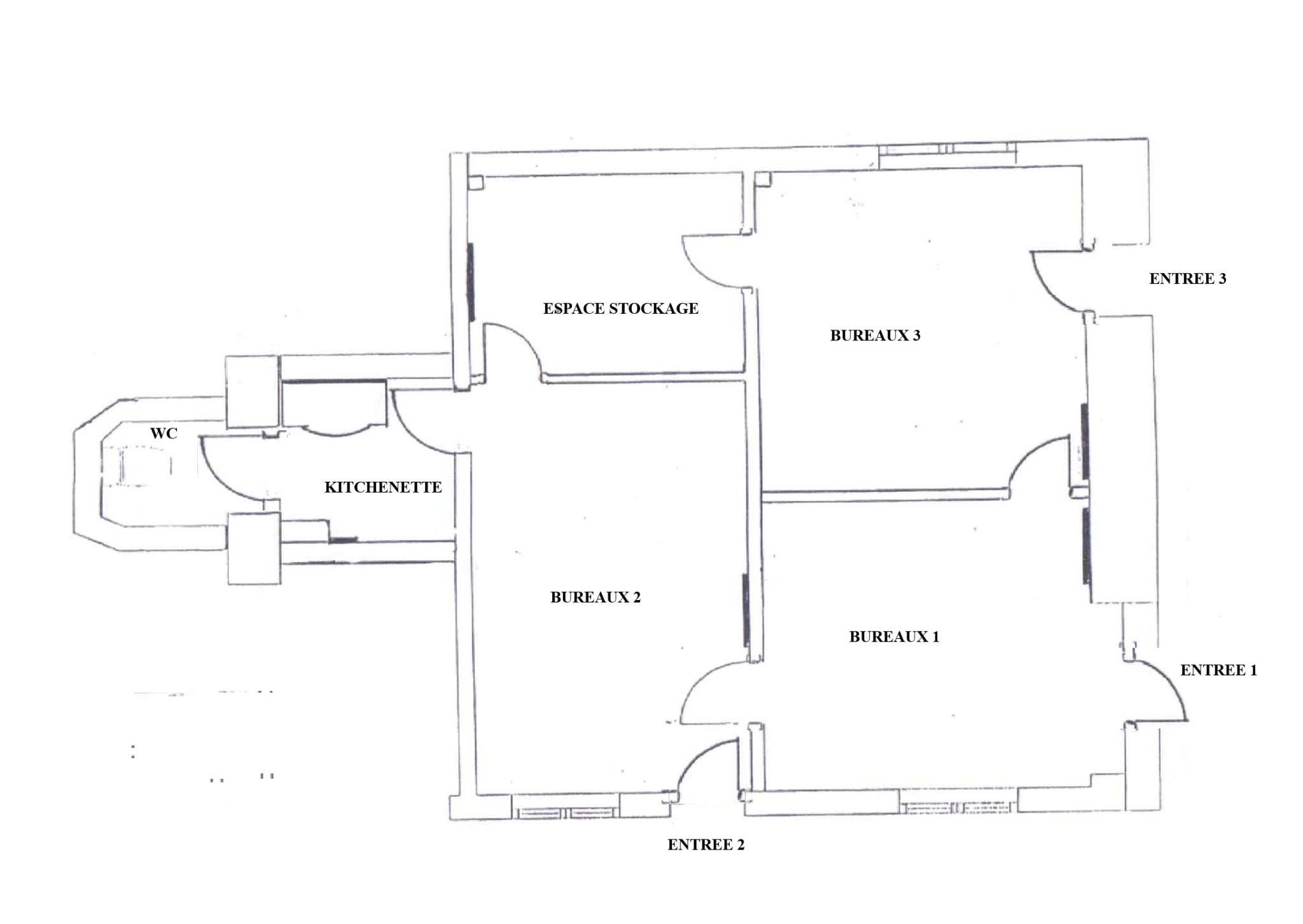
Dans la partie piétonne de la rue St Denis, à proximité de Réaumur et Montorgeuil, Paris Office Immobilier vous propose des bureaux de 40m², au 1e étage sans ascenseur, disponibles à la location.
Bureaux en excellent état, traversants, composés d'une pièce principale, coin cuisine, sanitaires, double vitrage.
Excellent état général, quartier vivant et central.
Conditions financières : - Loyer : 1 700/mois HC HT - Loyer annuel : 510/m²/an HC HT - Provision sur charges : 200/mois - Dépôt de garantie : 3 mois de loyer HC HY - Garantie bancaire GAPD ou Caution personnelle du gérant - Taxe foncière : 1 883 - Charge locataire - Frais de rédaction d'acte : 1 900 HT - Charge locataire - Frais d'agence : 30% HT du loyer annuel HC HT - Charge locataire
Environnement : Réaumur Sébastopol, Sentier, Montorgueil, Arts et Méteris...
Honoraires de 7 200 HT à la charge du locataire. Provision sur charges 200 HT/mois, régularisation annuelle. Dépôt de garantie 5 100 . DPE en cours. Les informations sur les risques auxquels ce bien est exposé sont disponibles sur le site Géorisques : georisques.gouv.fr.
40 m²
1
1 sur 4
7200 %
200.00 € / mois
Contact Paris Office Immobilier - Franck NAKACHE
Contacter gratuitement à l'aide du formulaire ci-dessous.