Honoraires à la charge de l'acquéreur (Prix hors honoraires : 0 euros).
Les charges de location sont prévisionnelles mensuelles avec régularisation annuelle.
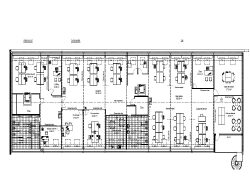
Votre cabinet TH2 Conseil et Transaction vous propose à la location un plateau de bureaux d'environ 728 m² (incluant les parties communes).
Situé Quartier de l'Eure Au dernier étage d'un bâtiment entièrement rénové, un plateau de bureaux à aménager totalement, tout est à créer, des plans ont déjà été étudiés par le bailleur. Possibilité de créer un rooftop. les travaux peuvent être effectuer par le bailleur en incluant un surloyer, ils peuvent être également divisés entre les deux parties, ou pris en charge par le locataire avec une franchise de loyer. ( possibilité de louer plus grand ou plus petit).
Entrée sécurisé, ascenseur, baie de brassage Service à la carte allant jusqu'au ménage si vous le désirez.
Les charges incluent l'eau, l'électricité et l'entretien des communs.
Parking disponibles à 250 HT/unité/an.
Accès/Desserte : Bus : ligne 3 et 5. A 10 mn du centre ville et de la gare en voiture, A 7 mn de l'entrée / sortie de ville, A 10 mn de l'A131
Bail : Commercial Durée : 3/6/9 ans Régime fiscal : TVA Dépôt de garantie : 3 mois Loyer et charges : Trimestriels et d'avance Indexation : Annuelle Indice : ILAT
TH2 Conseil et Transaction 06.69.40.16.93 Nous ne manquerons pas de vous donner plus d'informations concernant ce bien.
Honoraires de 28 392 HT à la charge du locataire. Dépôt de garantie 23 660 . Non soumis au DPE. Les informations sur les risques auxquels ce bien est exposé sont disponibles sur le site Géorisques : georisques.gouv.fr.
728 m²
28392 %
Oui
Oui
Contact Cyrill PLANQUE
Contacter gratuitement à l'aide du formulaire ci-dessous.