Honoraires à la charge de l'acquéreur (Prix hors honoraires : 0 euros).
Les charges de location sont prévisionnelles mensuelles avec régularisation annuelle.
À LOUER BUREAU NEUF AVEC TERRASSE DISPONIBLE IMMÉDIATEMENT - Villeneuve-lès-Maguelone
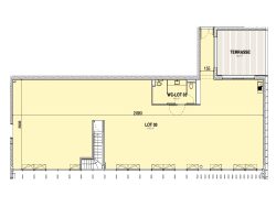
Dans un environnement dynamique, au coeur de la ZAC Charles Martel à Villeneuve-lès-Maguelone, découvrez ce bureau entièrement neuf d'une surface de 228,8 m², avec deux sanitaires dont un aux normes PMR, situé au niveau 1/1 d'un magnifique bâtiment livré en novembre. Vous bénéficierez également d'une superbe terrasse de 22,3 m², idéale pour des pauses en extérieur ainsi que de 6 places de stationnement en extérieur, incluses dans le montant du loyer. Enfin, vous profiterez d'une magnifique vue dégagée sur la campagne avoisinante et sur la MER.
Caractéristiques techniques du plateau livré : Carrelage au sol 45 x 45 cm gris Doublage périphérique Dalles de plafond 60 x 60 cm blanches Sanitaires entièrement équipés (dont 1 PMR) Peinture lisse blanche Groupe de climatisation installé (réseau de distribution à prévoir) Les + : Locaux neufs, lumineux et fonctionnels Accessibilité PMR Stationnement privatif Terrasse rare Emplacement stratégique à proximité des grands axes et à quelques minutes de Montpellier.
Non soumis au DPE. Les informations sur les risques auxquels ce bien est exposé sont disponibles sur le site Géorisques : georisques.gouv.fr.
229 m²
1 sur 1
2025
6
Contact Toctoc
Contacter gratuitement à l'aide du formulaire ci-dessous.