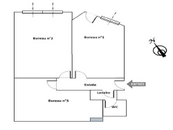
A LOUER Situé sur axe très passant du centre-ville d'ANGERS, face au passage du tramway et bus, un local professionnel d'environ 62 m2 en rez-de-chaussée, composé d'un accueil, d'un open space, et d'un espace détente avec cuisine. WC et douche. Baie de brassage. Possibilité de stationnement en sus Vitrine : non Copropriété : oui Disponibilité : 7 octobre 2025 Loyer trimestriel HC : 3 000 EUR - non assujetti à TVA Périodicité des paiements : trimestrielle Dépôt de garantie : 2 000 EUR Taxe foncière : à la charge du locataire Charges : 272 EUR par trimestre à la charge du locataire Honoraires à la charge du preneur : 25 % du premier loyer annuel HT plus TVA 20% Soit 3 000 EUR HT (3 600 EUR TTC) Les informations sur les risques auxquels ce bien est exposé sont disponibles sur le site www.georisques.gouv.fr.
62 m²
3600 %
Contact GUILBEAU Benoit
Contacter gratuitement à l'aide du formulaire ci-dessous.