Les charges de location sont prévisionnelles mensuelles avec régularisation annuelle.
Bureaux neufs à louer Programme Le FIER, Argonay.
Au sein du programme neuf Le FIER, découvrez des surfaces de bureaux de haut standing disponibles à la location sur la commune d'Argonay, aux portes d'Annecy. Idéalement implanté le long d'un axe majeur d'entrée dans l'agglomération annécienne, cet immeuble tertiaire moderne offre une visibilité exceptionnelle et une accessibilité optimale.
Conçu par un promoteur régional reconnu pour la qualité de ses réalisations dans l'immobilier d'entreprise, Le FIER incarne le savoir-faire local et l'attention portée à chaque détail, du choix des matériaux à la conception des espaces de travail.
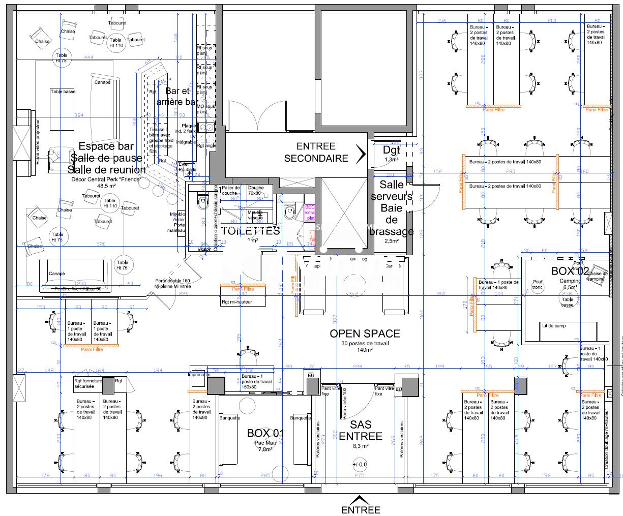
Les bureaux disponibles, situés en R+2, sont livrés entièrement finis : cloisonnement, peinture, moquette, revêtement PVC et sanitaires privatifs (avec en complément une kitchenette privative pour le lot 203). Les aménagements garantissent un confort de travail optimal et une installation immédiate.
Conditions : - Bail commercial 3 / 6 / 9 ans, - Charges locatives : provision de 15% HT du loyer hors taxes, - Taxe foncière en sus refacturée au preneur.
Possibilité de regrouper les deux lots pour créer une surface totale de près de 398 m².
Le bâtiment répond aux derniers standards tertiaires, tant sur le plan énergétique que fonctionnel. Déjà plébiscité par de nombreuses entreprises de services et professions libérales, Le FIER s'affirme comme un nouveau pôle de référence pour l'accueil de clients, patients et partenaires professionnels sur le bassin annécien.
Un emplacement stratégique, une qualité de construction irréprochable et la signature d'un promoteur de confiance : tout est réuni pour faire du FIER une adresse d'avenir pour le développement de votre activité.
RESEAU BROKERS® est le premier cabinet immobilier d'entreprise structuré en réseau de mandataires. Nous maillons avec notre équipe de 80 Brokers une grande partie du territoire national pour accompagner nos entreprises clientes dans leurs recherches de commerces, bureaux, locaux d'activités, immeubles et fonciers. www.reseau-brokers.com
Honoraires de 10 500 HT à la charge du locataire. DPE en cours. Les informations sur les risques auxquels ce bien est exposé sont disponibles sur le site Géorisques : georisques.gouv.fr.