Honoraires à la charge de l'acquéreur (Prix hors honoraires : 490000 euros).
Venez découvrir en exclusivité, proche du centre-ville d'Annecy et de ses commodités, cet appartement de 110M2 au premier étage d'une résidence de standing avec ascenseur et cave.
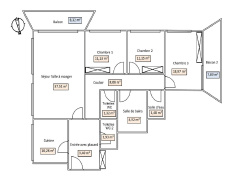
L'appartement offre trois chambres avec placard, un vaste séjour de 37m2, une cuisine séparée de 11 m2, deux WC, une salle d'eau et une salle de bain. Vous bénéficiez également de deux balcons au calme donnant sur les espaces verts. Possibilité d'un garage en SUS.
A propos de la copropriété : Pas de procédure en cours Nombre de lots : 49 Charges prévisionnelles annuelles : 2 920 EUR - DPE : E GES : C
Professions libérales, Bureaux, Appartement ? Laissez libre cours à vos envies grâce au potentiel de cet appartement.
Pour plus de renseignements, contactez votre spécialiste en Immobilier professionnel ANNECY et ARAVIS au 06 19 68 34 06. RESEAU EXPERTIMO Carte professionnelle : No CPI 8401 2018 000 024 015, représenté par Mr Guillaume Cros Agent indépendant enregistré RSAC Annecy N'91412690.
Cette annonce vous est proposée par CROS Guillaume - EI - NoRSAC: 914 123 690, Enregistré à Greffe du tribunal de commerce de Annecy - Annonce rédigée et publiée par un Agent Mandataire -
110 m²
4 665 €
4.71 %
1996
Oui
Consommations énergétiques
Logement économe
399
Logement énergivore (kWhEP/m2/an)
Émissions de gaz à effet de serre
Faible émission de GES
13
Forte émission de GES(kgeqCO2/m2/an)
Contact Guillaume CROS
Contacter gratuitement à l'aide du formulaire ci-dessous.