Honoraires à la charge de l'acquéreur (Prix hors honoraires : 0 euros).
Les charges de location sont prévisionnelles mensuelles avec régularisation annuelle.
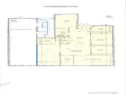
Bureaux, locaux d'activité, à proximité du technopôle et du Zenith hyper accessible depuis l'autoroute A 72. Surface en RDC de 152 m² aves coin cuisine et sanitaires, chauffage par climatisation réversible, avec 12 places de stationnement privatif et une place PMR. les locaux peuvent être remangés en fonction de votre cahier de vos besoins
Honoraires de 4 200 HT à la charge du locataire. Provision sur charges 130 HT/mois, régularisation annuelle. Dépôt de garantie 4 200 . DPE en cours. Les informations sur les risques auxquels ce bien est exposé sont disponibles sur le site Géorisques : georisques.gouv.fr.
Votre conseiller Cabinet Mérieux : Conseil en immobilier pro - Vincent Geoffroy. Documents et photos non contractuels susceptibles d'évolutions au fil de la commercialisation.
152 m²
3
4200 %
01/01/2024
130.00 € / mois
12
Contact Cabinet Mérieux - Philippe MARTINEZ
Contacter gratuitement à l'aide du formulaire ci-dessous.