Bureaux neufs 167m² + stationnements à vendre - Pringy
Annecy 74370
0
Honoraires à la charge du vendeur.
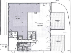
Disponible à l'acquisition, sur le secteur de Promery à Pringy (74370), un plateau de bureaux neufs en RDC ainsi que 5 places de stationnements en sous-sol (incluses dans le prix).
Les locaux sont livrés finis, reste à prévoir le cloisonnement intérieur en fonction de votre concept et de vos besoins (nous proposons un accompagnement dans le chiffrage et de déploiement).
Surface : 167m² privatif, 193 m² quotepart des parties communes incluses.
RESEAU BROKERS® est le premier cabinet immobilier d'entreprise structuré en réseau de mandataires. Nous maillons avec notre équipe de 80 Brokers une grande partie du territoire national pour accompagner nos entreprises clientes dans leurs recherches de commerces, bureaux, locaux d'activités, immeubles et fonciers. www.reseau-brokers.com
Honoraires à la charge du vendeur. DPE en cours. Les informations sur les risques auxquels ce bien est exposé sont disponibles sur le site Géorisques : georisques.gouv.fr.