Bureaux tertiaires à louer à Strasbourg hyper-centre
Strasbourg 67000
0
La part des honoraires pour la réalisation de létat des lieux de ce bien est de 360 euros.
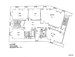
L'agence AGNES ODRY IMMOBILIER vous propose à la location un local tertiaire de 258 m2 au premier étage, dans un bel immeuble situé rue du parchemin à Strasbourg. Vous disposerez de quatre bureaux spacieux et lumineux, et d'une pièce de 70 m2 pouvant convenir à une salle de réunions ou un « open space ». Les locaux sont pourvus d'un ascenseur, de sanitaires hommes et femmes, normes de sécurité, normes PMR en cours. Les locaux sont en état correct (sol, mur, plafonds, sanitaires). Emplacement exceptionnel : en hyper centre de STRASBOURG. Les bureaux bénéficient d'une belle visibilité et s'insèrent dans le secteur historique de la Ville. Ville très accessible, Strasbourg possède une position avantageuse du fait de sa proximité avec l'Allemagne, avec l'aéroport d'Entzheim et avec son port autonome. Nombreux services aux utilisateurs. De très nombreuses pistes cyclables et un réseau de transports en commun bien développé. L'arrêt de tram le plus proche est situé à seulement 350 mètres et vous permet de vous rendre à la Gare Strasbourg TGV en 13 minutes. Les informations sur les risques auxquels ce bien est exposé sont disponibles sur le site Géorisques : georisques.gouv.fr Pour visiter les locaux, contactez Agnès ODRY au 07.84.92.26.47 Cette annonce est publiée par Agnès Odry Immobilier à 67520 Nordheim - RCS Saverne 832 703 870 00010. Les informations sur les risques auxquels ce bien est exposé sont disponibles sur le site Géorisques : www.georisques.gouv.fr
258 m²
2
6386 %
94.166666666667 € / mois
1850
Oui
Consommations énergétiques
Logement économe
531
Logement énergivore (kWhEP/m2/an)
Émissions de gaz à effet de serre
Faible émission de GES
120
Forte émission de GES(kgeqCO2/m2/an)
Contact ODRY EBY
Contacter gratuitement à l'aide du formulaire ci-dessous.