Honoraires à la charge de l'acquéreur (Prix hors honoraires : 0 euros).
Les charges de location sont prévisionnelles mensuelles avec régularisation annuelle.
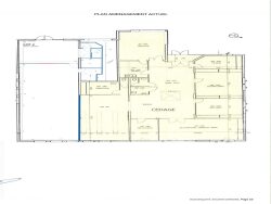
Local commercial / bureaux à louer à proximité du Zenith et proche accès autoroute A 72. Surface en RDC de 152 m2 aves coin cuisine et sanitaires, chauffage par climatisation réversible, avec 12 places de stationnements privatives et une place PMR. Locaux conformes PMR. Disponibles au 01/01/2024. Visites sur RDV.
Honoraires de 4 200 HT à la charge du locataire. Provision sur charges 130 HT/mois, régularisation annuelle. Dépôt de garantie 4 200 . DPE en cours. Les informations sur les risques auxquels ce bien est exposé sont disponibles sur le site Géorisques : georisques.gouv.fr.
Votre conseiller Cabinet Mérieux : Conseil en immobilier pro - Vincent Geoffroy. Documents et photos non contractuels susceptibles d'évolutions au fil de la commercialisation.
Local d'activités
152 m²
3
4200 %
01/01/2024
130.00 € / mois
12
Contact Cabinet Mérieux - Philippe MARTINEZ
Contacter gratuitement à l'aide du formulaire ci-dessous.