CAEN MEMORIAL APPARTEMENT A VENDRE LOUE AVEC GARAGE ET CAVE
Caen 14000
0
Honoraires à la charge du vendeur.
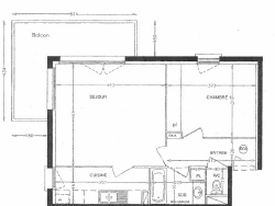
EN EXCLUSIVITE - CAEN NORD, Quartier Mémorial Résidence Les villas de Bellevue, un appartement à vendre loué de 2 pièces principales de 47.73m2 comprenant une entrée, un séjour donnant sur un grand balcon en angle, une cuisine indépendante, une chambre avec un grand placard, une salle de douches et un WC indépendant. Un garage et une cave en sous-sol complètent ce bien. Appartement actuellement loué 590EUR hc. Consommation d'énergie : D (186kwh/an/m2), Gaz à effet de serre : D.
Montant estimé des dépenses annuelles d'énergie: entre 740EUR et 1040EUR. Estimation réalisée à partir des prix énergétiques de référence des années 2021. Quote part annuelle de charges exercice 01/01/2024 au 31/12/2024: 1 311.57EUR.
Prix du bien : 135 800EUR, honoraires à la charge du vendeur. La visite virtuelle est disponible sur demande. Les informations sur les risques auxquels ce bien est exposé sont disponibles sur le site georisques.gouv.fr. Cabinet QUESNEE 02.31.34.08.50/06.08.15.49.74
47.73 m²
2 845 €
12 m²
20 m²
2
1
1
1
1 sur 3
2001
Sud
Est
1 (12 m²)
Oui
Oui
1
Oui (118 lots)
Consommations énergétiques
Logement économe
186
Logement énergivore (kWhEP/m2/an)
Émissions de gaz à effet de serre
Faible émission de GES
37
Forte émission de GES(kgeqCO2/m2/an)
Contact ALEXANDRE Elsa
Contacter gratuitement à l'aide du formulaire ci-dessous.