Cagnes -sur- Mer, 2 pièces à quelques minutes de la gare
Cagnes-sur-Mer 06800
0
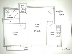
À seulement quelques minutes du centre-ville, de la gare et des plages, cet appartement d'environ 44 m² à rafraîchir se compose d'un salon, d'une cuisine équipée, d'une chambre et d'un balcon. Situé dans un quartier calme, proche de toutes commodités, il offre un beau potentiel pour une résidence principale, secondaire ou un investissement locatif.
Bien soumis au statut de la copropriété, 62 logements, procédure en cours : aucune, 44 lots, Charges budget prévisionnel annuel 2 276 €.
Annonce publiée par Gabriela Reinhold (EI) votre agent commercial en immobilier LF immo à Antibes, 06600 immatriculé au RSAC de Antibes sous le n°804 491 397 000 50. Consultez nos tarifs sur le site LF immo.
Les informations sur les risques auxquels ce bien est exposé sont disponibles sur le site Géorisques : www.georisques.gouv.fr.
44 m²
5 159 €
2
1
1
1
3
Équipée
Oui
Oui
Consommations énergétiques
Logement économe
177
Logement énergivore (kWhEP/m2/an)
Émissions de gaz à effet de serre
Faible émission de GES
41
Forte émission de GES(kgeqCO2/m2/an)
Contact Gabriela Reinhold
Contacter gratuitement à l'aide du formulaire ci-dessous.