Très beau T3 de 90 m² Beaux volumes & Vue Rhône face au Parc de la tête d'Or
Vivez sur le Cours Aristide Briand, avec le poumon vert de Lyon pour horizon . Situé au 2ème étage d'une copropriété de standing parfaitement entretenue, ce superbe type 3 de 90 m² offre un cadre de vie rare. Entre le calme du Rhône et l'accès immédiat au Parc de la Tête d'Or, c'est une opportunité unique sur le marché.
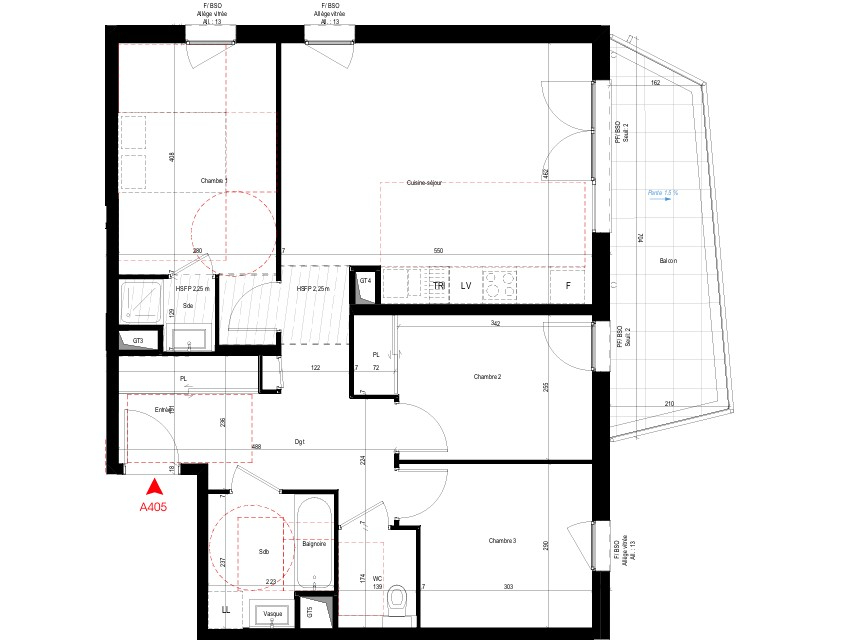
- Une belle pièce de vie lumineuse et cocooning Le point fort de cet appartement repose sur sa pièce de réception spacieuse. Ses volumes généreux et sa luminosité naturelle mettent en valeur un espace salon/salle à manger idéal pour recevoir. Elle s'ouvre sur un large balcon où vous profiterez d'une vue apaisante et imprenable sur le Rhône. Côté nuit, vous disposez de deux belles chambres aux larges fenêtres et accès privatif au balcon. Une salle de bains en parfait état avec baignoire et des toilettes indépendantes complètent cet espace.
- Entre Nature et Urbanité Localisation Premium : Traversez et vous êtes au Parc de la Tête d'Or. Le bus au pied de l'immeuble vous connecte au centre-ville de Lyon en quelques minutes. Côté Nuit : 2 grandes chambres au calme absolu pour un repos total. Cuisine : Une cuisine fermée, haut de gamme et entièrement équipée. Double Extérieur : Deux balcons pour profiter de chaque exposition. - Le Confort Absolu Garage box fermé en sus (indispensable et sécurisé). Résidence sécurisée avec ascenseur. Appartement en très bon état, prêt à habiter.
Charges comprenant, chauffage, eau chaude, eau froide DPE (D) GES (E) Taxe foncière: 2305 Bien soumis au régime de la copropriété. Pas de procédure en cours Charges annuelles : 4680 Les informations sur les risques auxquels ce bien est exposé sont disponibles sur le site Géorisques : www.georisques.gouv.fr Contactez Sofiane BERABEZ sofiane@cesaretbrutus.com 06 83 20 68 49 Agent commercial indépendant. Référence du bien : SBE- 9755
Honoraires à la charge du vendeur. Dans une copropriété de 58 lots. Aucune procédure n'est en cours. Classe énergie D, Classe climat E. Montant moyen estimé des dépenses annuelles d'énergie pour un usage standard, établi à partir des prix de l'énergie de l'année 2018 : 920.00 . Date de réalisation du DPE : 11-03-2018. Les informations sur les risques auxquels ce bien est exposé sont disponibles sur le site Géorisques : georisques.gouv.fr.